Contrata luz y gas online, sin permanencia
- 4 habs.
- 2 banys
- 150 m²
Casa o xalet en venda a Avinguda de Reus, 11, Vilanova d'Escornalbou
Vilanova d'Escornalbou
VENDEMOS SOLAR CON LICENCIA DE OBRAS APROBADA: Ahórrate 2 años de trámites y construye tu casa soñada en Vilanova d´Escornalbou (Tarragona)
¿Buscas una casa de obra nueva sin tener que esperar eternamente por los permisos? Esta es tu oportunidad. Vendemos solar urbano de 500 m² con PROYECTO Y LICENCIA DE OBRAS TOTALMENTE APROBADA. ¡Puedes empezar a construir mañana mismo!
EL PROYECTO: Diseño, Confort y Eficiencia
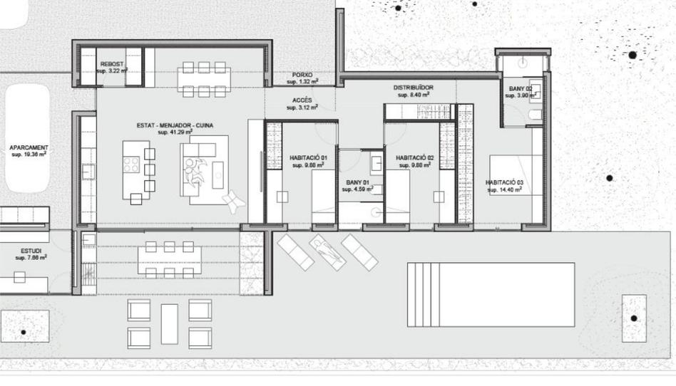
Se trata de un chalet unifamiliar de estilo contemporáneo, pensado para la comodidad absoluta al desarrollarse todo en una sola planta.
Superficie construida: 150 m².
Zona de día: Espectacular espacio abierto de concepto moderno que integra cocina, salón y comedor con grandes cristaleras.
Zona de noche: 3 habitaciones dobles (una de ellas tipo suite con baño privado).
Despacho: Espacio independiente ideal para el teletrabajo o lectura.
Baños: 2 baños completos de diseño.
Orientación Sur: Máxima entrada de luz natural durante todo el día.
EL EXTERIOR: Tu oasis privado
Jardín de 350 m² que rodea toda la vivienda.
Piscina privada integrada en el diseño del proyecto.
Zona Chill-out y comedor exterior bajo pérgola.
Garaje privado integrado.
SOSTENIBILIDAD Y AHORRO
Proyecto diseñado para obtener la Certificación Energética A, garantizando el máximo ahorro en las facturas de luz y agua y un confort térmico excepcional.
¡No dejes escapar la casa que siempre has imaginado! Contacta hoy mismo para ver el proyecto completo y los renders.
Característiques
Tipus d'immoble
Casa o xaletDisponibilitat
Sense restriccionsOrientació
SudEstat
Gairebé nouAntiguitat
Menys d'1 anyGaratge
PrivatAscensor
NoMoblat
NoEnergia
Etiqueta de qualificació energètica:GEmissions:999 kg CO₂ m² / anyEmissions
Etiqueta de qualificació energètica:GEmissions:999 kg CO₂ m² / any
- Aire condicionat
- Armaris
- Calefacció
- Jardí Privat
- Traster
- Pati
- Piscina
- Suite - amb bany
- Balcó
Tipus d'interès
Quota mensual estimada
452 €
Servei ofert per
Fotocasa no actua com a intermediari financer. La informació proporcionada té caràcter orientatiu, basant-se en informació pública al mercat. Serà l'entitat de crèdit qui contacti amb el potencial prestatari per negociar, facilitar i pactar les condicions financeres aplicables.
Desglossament de la hipoteca
La teva quota mensual
452 € *
Durant 30 anys (360 quotes)
Preu de l'immoble:
125.000 €
Impostos i despeses de la compra:
14.403 €
Cost total de l'immoble:
139.403 €
Estalvi aportat:
25.000 €
Import de la hipoteca:
114.403 €
Interessos totals:
48.328 €
Cost total amb hipoteca
187.731 €
Capital + interessos + impostos i despeses
Fotocasa no actua com a intermediari financer. La informació proporcionada té caràcter orientatiu, basant-se en informació pública al mercat. Serà l'entitat de crèdit qui contacti amb el potencial prestatari per negociar, facilitar i pactar les condicions financeres aplicables.
Elige la Fibra que mejor se adapte a ti.




