Contrata luz y gas online, sin permanencia
- 2 habs.
- 1 bany
- 73 m²
- Baixos
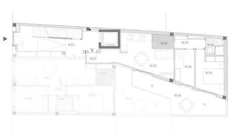
Planta baixa en venda a Son Cotoner
Palma de Mallorca
Descubre este magnífico bajo de obra nueva situado en el consolidado y bien comunicado barrio de Son Cotoner, en Palma de Mallorca. Una vivienda pensada para quienes buscan comodidad, diseño contemporáneo y calidad de vida en una de las zonas más prácticas de la ciudad.
La vivienda cuenta con un moderno diseño funcional, espacios abiertos y una excelente entrada de luz natural. El salón-comedor se integra con una elegante cocina de estilo actual, creando un ambiente amplio y acogedor ideal para el día a día.
Dispone de dormitorios confortables, acabados de alta calidad y una cuidada distribución que aprovecha cada metro cuadrado. Al tratarse de un bajo, ofrece además la comodidad de un acceso fácil y directo, perfecto tanto para familias como para quienes buscan una vivienda práctica y accesible.
Ubicado en una zona con todos los servicios a pocos minutos: supermercados, colegios, centros de salud, transporte público y rápida conexión con el centro de la ciudad.
Una oportunidad única para estrenar vivienda en un entorno urbano tranquilo y perfectamente conectado.
No tiene parking.
La entrega de las viviendas esta programada para el segundo trimestre de 2027
Memoria de calidades:
- Estructura: cimentación y estructura de hormigón armado según normativa.
- Fachadas y tabiques: ladrillo con aislamiento térmico-acústico y placas de yeso laminado.
- Suelos y revestimientos: gres porcelánico en suelos, cocina y baños; techos de yeso o falso techo.
- Zonas comunes: ascensor y escaleras/pavimentos de mármol nacional.
- Carpintería: puertas interiores lacadas en blanco y puerta de entrada blindada; ventanas de PVC con doble acristalamiento y persianas.
- Instalaciones: electricidad según normativa, videoportero, tomas de TV y teléfono.
- Fontanería: sanitarios Roca o similar, grifería Hansgrohe; agua caliente por bomba de calor.
- Climatización: preinstalación de aire acondicionado frío-calor.
- Cocina: muebles incluidos y electrodomésticos básicos (vitro, horno y campana).
Hay más viviendas en venta, diferentes tamaños y precios. Para más información, contacta con nostros!
*Impuestos, gastos de notaria y registro no incluidos en el precio
Característiques
Tipus d'immoble
Planta baixaDisponibilitat
Sense restriccionsEstat
Gairebé nouAntiguitat
Menys d'1 anyPlanta
Baixos / Planta baixaAscensor
SíMoblat
NoEnergia
Etiqueta de qualificació energètica:ExemptEmissions
Etiqueta de qualificació energètica:Exempt
- Jardí Privat
- Terrassa
- Porta Blindada
Tipus d'interès
Quota mensual estimada
1.266 €
Servei ofert per
Fotocasa no actua com a intermediari financer. La informació proporcionada té caràcter orientatiu, basant-se en informació pública al mercat. Serà l'entitat de crèdit qui contacti amb el potencial prestatari per negociar, facilitar i pactar les condicions financeres aplicables.
Desglossament de la hipoteca
La teva quota mensual
1.266 € *
Durant 30 anys (360 quotes)
Preu de l'immoble:
370.000 €
Impostos i despeses de la compra:
24.399 €
Cost total de l'immoble:
394.399 €
Estalvi aportat:
74.000 €
Import de la hipoteca:
320.399 €
Interessos totals:
135.348 €
Cost total amb hipoteca
529.747 €
Capital + interessos + impostos i despeses
Fotocasa no actua com a intermediari financer. La informació proporcionada té caràcter orientatiu, basant-se en informació pública al mercat. Serà l'entitat de crèdit qui contacti amb el potencial prestatari per negociar, facilitar i pactar les condicions financeres aplicables.
Elige la Fibra que mejor se adapte a ti.