Contrata luz y gas online, sin permanencia
Pis en venda a El Poblenou
Barcelona Capital
Pertany a la promoció Venta Promoción De Obra Nueva En Poblenou
Bienvenidos a Pujades, un proyecto de obra nueva en el distrito de Sant Martí, en el barrio de Poblenou.
La obra finaliza en marzo del 2026
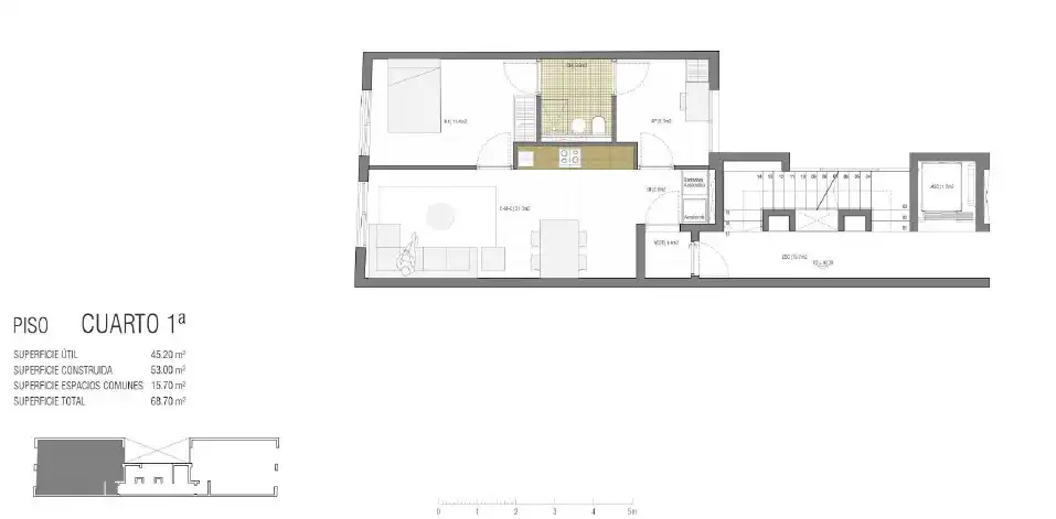
Se trata de un edificio de obra nueva con licencia de obras concedida. Se encuentra en el centro de Poblenou a 300 m de la Rambla, al lado de la estación de metro (Poblenou). Cuenta con todos los servicios y excelente accesibilidad. La finca está compuesta por una PBº donde podemos encontrar el acceso más un local comercial y 5º niveles, 2 pisos por nivel, que suman 10 viviendas en total. (Panos cargados en la publicación) Pisos de 2 dormitorios, baño completos con doble acceso, cocina, salón-comedor y balcón en algunos casos. Están sometidos a un diseño interior, que logra espacios funcionales y acogedores, consiguiendo ventilación e iluminación en todas las estancias de la vivienda. Se entregan equipados con cocinas de primer nivel, climatización ecológica (aerotermia) y eficiencia energética garantizada gracias a un buen aislamiento.
Acerca de El Poblenou
Se trata del barrio que más transformaciones ha sufrido desde comienzos de este siglo XXI. Ha pasado de ser un barrio de industrias decadentes a convertirse en un barrio en el que se mezclan empresas de nuevas tecnologías, con hoteles de 4 y 5 estrellas, campus universitarios y edificios de viviendas. Pero además de estos edificios modernos, lo que sorprende en el Poblenou, es el contraste de lo nuevo con lo antiguo. Podemos encontrarnos en un mismo lugar, clásicos edificios o industrias de principios del siglo XX, con los nuevos iconos de la arquitectura de Barcelona. Estos contrastes, sumado al hecho de que nuevos vecinos tanto de otros barrios de Barcelona como extranjeros comparten el barrio con vecinos que llevan toda viviendo en Poblenou, hacen de este barrio, un lugar ideal para vivir y visitar.
Característiques de l'habitatge
Característiques bàsiques
Calefacció i refrigeració
Certificat energètic
Documentació disponible
Immobles d'aquesta promoció
1 Habitatge en aquesta promoció
Pertany a
Venta Promoción de Obra Nueva en Poblenou
Promoció Des de 492.000 €
Barcelona Capital
- Habitacions:2
- Banys:1
- Superfície:53
Tipus d'interès
Quota mensual estimada
1.759 €
Servei ofert per
Fotocasa no actua com a intermediari financer. La informació proporcionada té caràcter orientatiu, basant-se en informació pública al mercat. Serà l'entitat de crèdit qui contacti amb el potencial prestatari per negociar, facilitar i pactar les condicions financeres aplicables.
Desglossament de la hipoteca
La teva quota mensual
1.759 € *
Durant 30 anys (360 quotes)
Preu de l'immoble:
492.000 €
Impostos i despeses de la compra:
51.547 €
Cost total de l'immoble:
543.547 €
Estalvi aportat:
98.400 €
Import de la hipoteca:
445.147 €
Interessos totals:
188.046 €
Cost total amb hipoteca
731.593 €
Capital + interessos + impostos i despeses
Fotocasa no actua com a intermediari financer. La informació proporcionada té caràcter orientatiu, basant-se en informació pública al mercat. Serà l'entitat de crèdit qui contacti amb el potencial prestatari per negociar, facilitar i pactar les condicions financeres aplicables.
Elige la Fibra que mejor se adapte a ti.