Contrata luz y gas online, sin permanencia
- 3 habs.
- 1 bany
- 107 m²
- 107 m² terreny
Casa adosada en venda a Calle Ana Caro, 32, Cantillana
Cantillana
*EL HOGAR DE TUS SUEÑOS COMIENZA POR UN SOLAR*... PERO ESTE YA TIENE EL CAMINO RECORRIDO...
¿Imaginas construir tu casa sin los dos años de esperas, arquitectos y burocracia habituales?
Deja de imaginar y empieza a edificar. 🏠
Ponemos a la venta este solar de 107 m² en la zona más cotizada de Cantillana: Vistahermosa del Viar.
No es solo tierra; es un proyecto de vida con "llave en mano administrativa" 💗
💎 *LA OPORTUNIDAD QUE BUSCAN FAMILIAS E INVERSORES*:
PROYECTO DE ARQUITECTURA TERMINADO: Una vivienda de diseño moderno, optimizada para la luz y el confort.
LICENCIA DE OBRA CONCEDIDA: El permiso municipal ya está en nuestras manos. Podrías empezar a construir mañana mismo.
CIMENTACIÓN YA EJECUTADA: Como puedes ver en las imágenes, la base de la vivienda ya está vertida. Hemos ahorrado por ti el coste y el tiempo de la fase más farragosa de la obra.
*UBICACIÓN "TOP"*: En pleno corazón de Vistahermosa, un entorno familiar, seguro y rodeado de naturaleza.
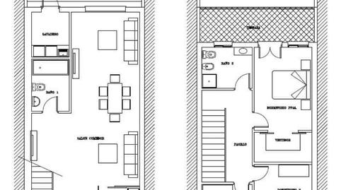
🏡 *UN DISEÑO PENSADO PARA LA PAZ*
Planta Baja: Gran salón-comedor y cocina integrados con un patio trasero privado de 3.40m de fondo, ideal para cenas al aire libre.
Planta Primera: Tres dormitorios luminosos. La joya es la Suite Principal con vestidor y una terraza privada para tus momentos de relax.
Azotea Transitable: Un espacio extra para crear tu propio solárium o zona chill-out.
Detalles Técnicos: Techos altos (hasta 3.50m en zonas comunes) que multiplican la sensación de amplitud y Luz.
"Ya hemos hecho el trabajo más difícil por ti: la burocracia, los planos y los cimientos. Tú solo trae tu ilusión y empieza a elegir los acabados de tu nuevo hogar."
*PRECIO CERRADO*: 33.000 €
(Suelo Proyecto Licencia Cimentación)
👉 Escríbeme ahora por WhatsApp para recibir el dossier con los planos detallados.
Ven a visitarlo y siente donde nacerá tu nueva vida.
Característiques
Tipus d'immoble
Casa adossadaDisponibilitat
Sense restriccionsGaratge
PrivatAscensor
NoMoblat
NoEnergia
Etiqueta de qualificació energètica:GEmissions:999 kg CO₂ m² / anyEmissions
Etiqueta de qualificació energètica:GEmissions:999 kg CO₂ m² / any
- Armaris
- Jardí Privat
- Terrassa
- Pati
- Suite - amb bany
- Balcó
- Safareig
Tipus d'interès
Quota mensual estimada
120 €
Servei ofert per
Fotocasa no actua com a intermediari financer. La informació proporcionada té caràcter orientatiu, basant-se en informació pública al mercat. Serà l'entitat de crèdit qui contacti amb el potencial prestatari per negociar, facilitar i pactar les condicions financeres aplicables.
Desglossament de la hipoteca
La teva quota mensual
120 € *
Durant 30 anys (360 quotes)
Preu de l'immoble:
33.000 €
Impostos i despeses de la compra:
3.951 €
Cost total de l'immoble:
36.951 €
Estalvi aportat:
6.600 €
Import de la hipoteca:
30.351 €
Interessos totals:
12.821 €
Cost total amb hipoteca
49.772 €
Capital + interessos + impostos i despeses
Fotocasa no actua com a intermediari financer. La informació proporcionada té caràcter orientatiu, basant-se en informació pública al mercat. Serà l'entitat de crèdit qui contacti amb el potencial prestatari per negociar, facilitar i pactar les condicions financeres aplicables.
Elige la Fibra que mejor se adapte a ti.
Arquitectos que inspeccionan tu futura casa
Tu vivienda protegida cuando estas fuera




