Connecta la teva llar
Tria la Fibra que millor s'adapti a tu.
Camprodon
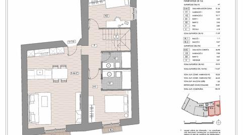
Aquest dúplex de 3 habitacions compta amb dos balcons amb vistes a la Plaça de la Vila. A la planta inferior, trobem dues habitacions, una d'elles en suite, i dos banys complets. La cuina, integrada amb el menjador, crea un ambient espaiós i lluminós, ideal per a la vida diària. A la planta superior, s'hi troba una àmplia sala d'estar que connecta amb la tercera habitació, així com un bany addicional amb vestidor, perfecte per al confort i la privacitat.
Trobarem el 3-1 i 3-2 dos dúplex de 3 habitacions .
Edifici de “Can Ral” residencial, ubicat al centre de la vila i al costat del riu Ter, pol d’atracció turística de nivell superior, ofereix comoditat, servei i proximitat a llocs públics i emblemàtics del municipi com la mateixa plaça de la vila i l’entorn del pont medieval i també a llocs d’oci, relaxació i gastronomia.
Representa una fusió entre la funcionalitat i la modernitat a partir d’unes preexistències locals molt genuïnes que s’han posat en valor.
La col·laboració entre els diferents agents que han participat en la seva elaboració dona com a resultat un edifici d’altes prestacions emplaçat en un lloc immillorable del municipi de Camprodon.
A “Can Ral” residencial, cada detall està pensat perquè els propietaris gaudeixin d'una vida plena de comoditats, benestar i serveis. Els espais comuns estan dissenyats per fomentar la convivència i oferir moments de relació
Tipus d'immoble
Disponibilitat
Estat
Planta
Ascensor
Moblat
Energia
Emissions
Tipus d'interès
Quota mensual estimada
1.698 € *
* Provisional subjecte a estudi i oferta de CaixaBank
Ja estàs buscant finançament?
T'ajudem a trobar l'opció que millor s'adapta a tu.
Servei ofert per
Fotocasa no actua com a intermediari financer. La informació proporcionada té caràcter orientatiu, basant-se en informació pública al mercat. Serà l'entitat de crèdit qui contacti amb el potencial prestatari per negociar, facilitar i pactar les condicions financeres aplicables.
La teva quota mensual
1.698 € *
Durant 30 anys (360 quotes)
* Provisional subjecte a estudi i oferta de CaixaBank
Preu de l'immoble:
475.000 €
Impostos i despeses:
49.847 €
Cost total de l'immoble:
524.847 €
Estalvi aportat:
95.000 €
Import de la hipoteca:
429.847 €
Interessos totals:
181.583 €
Cost total amb hipoteca
706.430 €
Capital + interessos + impostos i despeses
Ja estàs buscant finançament?
T'ajudem a trobar l'opció que millor s'adapta a tu.
Servei ofert per
Fotocasa no actua com a intermediari financer. La informació proporcionada té caràcter orientatiu, basant-se en informació pública al mercat. Serà l'entitat de crèdit qui contacti amb el potencial prestatari per negociar, facilitar i pactar les condicions financeres aplicables.
Tria la Fibra que millor s'adapti a tu.
Contracta llum i gas online, sense permanència.
Explica'ns què hi has vist per poder corregir-ho.