Contrata luz y gas online, sin permanencia
- 3 habs.
- 3 banys
- 99 m²
Pis en venda a La Prosperitat
Barcelona Capital
Exclusiva promoción de obra nueva en Nou Barris – C/ Nou Pins
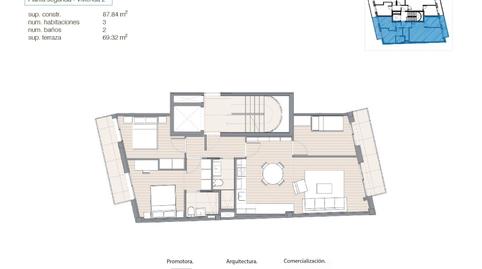
Superficie construida: 99.55 m²
Habitaciones: 3
Baños: 3
Terraza: 35.13 m²
Este elegante dúplex en planta baja cuenta con 99.55 m² de superficie construida y una distribución moderna en dos niveles. Con una habitación y dos baños, es ideal para quienes buscan un espacio exclusivo y funcional. La terraza de 35.13 m² añade un espacio exterior acogedor para disfrutar del buen tiempo. Su diseño abierto y luminoso ofrece una experiencia residencial única.
Descubre un hogar que lo tiene todo en una de las zonas más vibrantes y tranquilas de Nou Barris. Esta excepcional promoción de obra nueva ofrece seis modernas viviendas, diseñadas para maximizar la comodidad, el espacio y la luz natural.
Características destacadas de la promoción:
Dos bajos dúplex: Uno con una gran terraza privada, ideal para disfrutar del aire libre, y otro con un diseño tipo loft de concepto abierto, perfecto para quienes buscan un hogar elegante y funcional.
Cuatro viviendas en plantas superiores: Diseñadas para aprovechar al máximo la luz, con amplios ventanales y terrazas que se extienden por ambas fachadas, brindando una sensación de amplitud y conexión con el exterior. Cada una cuenta con distribuciones eficientes y acabados de alta calidad. Todas las viviendas cuentan con un espacio de terraza privado en planta baja o terraza superior.
Parking y comodidad:
Además, el proyecto incluye seis plazas de parking, de acceso cómodo y directo, lo que garantiza que siempre tendrás donde aparcar, en un barrio con gran demanda. Todo esto, integrado en un entorno que combina modernidad con el encanto de un barrio acogedor y familiar.
Un entorno inmejorable:
Ubicada en Nou Barris, la promoción se encuentra en una zona residencial tranquila, con todos los servicios necesarios a pocos minutos a pie: tiendas, colegios, parques y excelente conexión al transporte público. Aquí disfrutarás de la vida de barrio con todas las comodidades modernas.
No te pierdas la oportunidad de vivir en uno de los proyectos más atractivos de la zona, pensado para ofrecerte todo lo que buscas en tu nuevo hogar. ¡Visítanos y descubre tu nueva vida en Nou Barris! Beneficios adicionales:
•Asesoramiento financiero para facilitarte el acceso a tu nueva vivienda.
•Seguimiento personalizado durante todo el proceso de compra y construcción.
•Promoción de obra nueva con ofertas especiales en las primeras etapas de venta. Los precios no incluyen trastero ni garaje.
NO INCLUYE: Impuestos, licencia y notarios [IW]
Característiques
Tipus d'immoble
PisDisponibilitat
Sense restriccionsAscensor
SíMoblat
NoEnergia
Etiqueta de qualificació energètica:AEmissions:25 kg CO₂ m² / anyEmissions
Etiqueta de qualificació energètica:AEmissions:25 kg CO₂ m² / any
- Aire condicionat
- Calefacció
- Jardí Privat
- Cuina Office
- Cuina Equipada
Tipus d'interès
Quota mensual estimada
1.823 €
Servei ofert per
Fotocasa no actua com a intermediari financer. La informació proporcionada té caràcter orientatiu, basant-se en informació pública al mercat. Serà l'entitat de crèdit qui contacti amb el potencial prestatari per negociar, facilitar i pactar les condicions financeres aplicables.
Desglossament de la hipoteca
La teva quota mensual
1.823 € *
Durant 30 anys (360 quotes)
Preu de l'immoble:
510.000 €
Impostos i despeses de la compra:
53.347 €
Cost total de l'immoble:
563.347 €
Estalvi aportat:
102.000 €
Import de la hipoteca:
461.347 €
Interessos totals:
194.889 €
Cost total amb hipoteca
758.236 €
Capital + interessos + impostos i despeses
Fotocasa no actua com a intermediari financer. La informació proporcionada té caràcter orientatiu, basant-se en informació pública al mercat. Serà l'entitat de crèdit qui contacti amb el potencial prestatari per negociar, facilitar i pactar les condicions financeres aplicables.
Elige la Fibra que mejor se adapte a ti.