Residencial a Port de Pollença
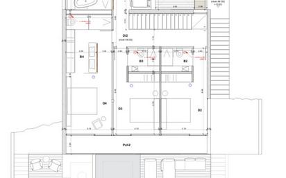
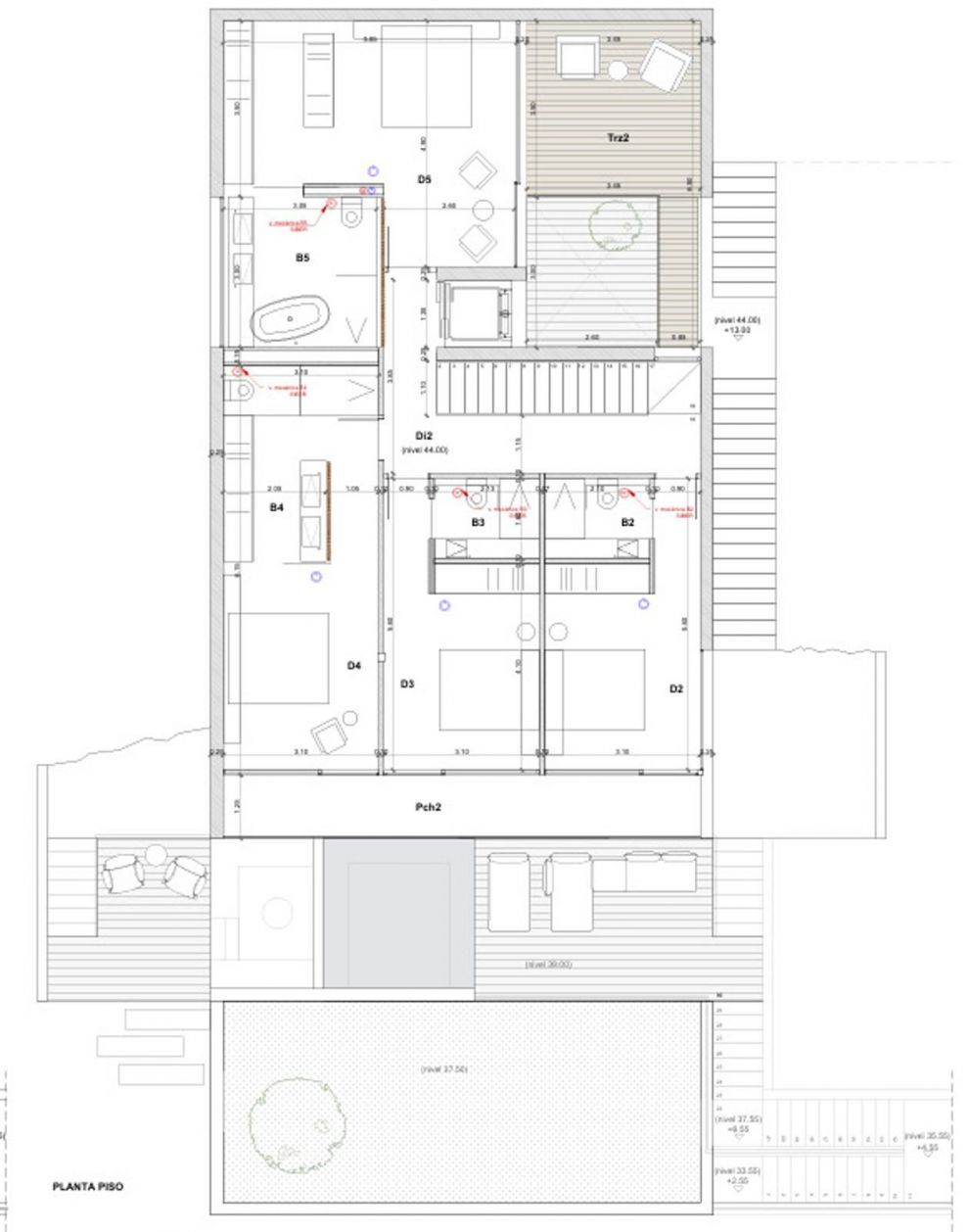
Esta hermosa parcela de 1.557 m2 en Port de Pollença está situado en una zona con fácil acceso e impresionantes vistas a las montañas de la Serra de Tramuntana. Se puede construir una gran vivienda unifamiliar con hasta 778 m2 edificados y 2 alturas, y también es compatible con el uso terciario-administrativo, de instalaciones o servicios infraestructurales o de servicios urbanos, y uso como espacio libre. El camino de acceso está asfaltado e iluminado, además de que la conexión a las redes de servicios municipales se encuentra a pie de calle. Esta propiedad está ubicado en Puerto Pollensa, con la Serra de Tramuntana, Patrimonio de la Humanidad, de fondo y el mar a pocos minutos; es por eso que este pueblo es uno de las más demandadas del Norte de Mallorca. Puerto Pollensa cuenta con numerosas instalaciones comerciales, escuelas, un centro de salud, médicos, una amplia gama de servicios y un reconocido puerto deportivo. Con una gran cantidad de eventos culturales y deportivos, y varios campos de golf cercanos, Port de Pollença es un lugar ideal para disfrutar de la vida cerca de las montañas y del Mediterráneo. Esta parcela urbana en Port de Pollença te da la oportunidad de diseñar tu nueva casa de acuerdo a tus deseos - ¿prefieres un diseño rústico-clásico o quieres un estilo más moderno y minimalista? Añade un jardín o una piscina. Planifica una terraza para tomar el sol, una terraza en la azotea para que puedas disfrutar de las vistas al mar directamente desde tu nuevo hogar, o un rincón de barbacoa y con cocina exterior para disfrutarla con tu familia. Tu casa será hecha a medida para ti, y esta parcela en Puerto Pollensa es la base de tus sueños.
- 1557 m²
