Contrata luz y gas online, sin permanencia

Obra nova
Pertany a
L'Ametlla del Vallès
Casa unifamiliar de disseny amb vistes als Cingles
Us presentem aquesta magnífica promoció d’obra nova situada al barri de Can Reixac, a L’Ametlla del Vallès, en un solar de 864 m² amb una orientació privilegiada i vistes obertes.
L’habitatge es distribueix en dues plantes:
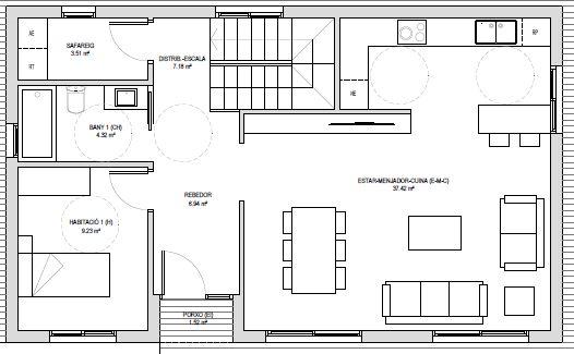
PLANTA BAIXA
Espai diàfan de cuina–menjador–sala d’estar amb sortida directa al jardí
Habitació doble
Bany complet
Sala de màquines i safareig
Carport amb accés directe des del carrer
Gran terrassa amb zona d’aigua i possibilitat de piscina al lateral dret
PLANTA PRIMERA
Suite principal de 27 m² amb vestidor
Habitació de 13,40 m2 amb vistes jardí
Estudi / tercera habitació opcional de 13 m²
Vistes obertes als Cingles
Pel tipus de construcció la qualificació energètica és la màxima eficiència energètica.
Una oportunitat única per estrenar casa a una de les zones més sol·licitades de L’Ametlla del Vallès.
1 Habitatge en aquesta promoció
Tipus d'interès
Quota mensual estimada
2.268 €
Servei ofert per
Fotocasa no actua com a intermediari financer. La informació proporcionada té caràcter orientatiu, basant-se en informació pública al mercat. Serà l'entitat de crèdit qui contacti amb el potencial prestatari per negociar, facilitar i pactar les condicions financeres aplicables.
Desglossament de la hipoteca
La teva quota mensual
2.268 € *
Durant 30 anys (360 quotes)
Preu de l'immoble:
635.000 €
Impostos i despeses de la compra:
65.997 €
Cost total de l'immoble:
700.997 €
Estalvi aportat:
127.000 €
Import de la hipoteca:
573.997 €
Interessos totals:
242.477 €
Cost total amb hipoteca
943.474 €
Capital + interessos + impostos i despeses
Fotocasa no actua com a intermediari financer. La informació proporcionada té caràcter orientatiu, basant-se en informació pública al mercat. Serà l'entitat de crèdit qui contacti amb el potencial prestatari per negociar, facilitar i pactar les condicions financeres aplicables.
Contrata luz y gas online, sin permanencia

Elige la Fibra que mejor se adapte a ti.
