Dúplex en venda a Sant Gervasi- Galvany
Barcelona Capital
Pertany a la promoció Exclusiva Promoción En Sant Gervasi De Solo 3 Unidades
Exclusiva Promoción de Obra Nueva en Sant Gervasi-Galvany: 2 Plantas bajas en Dúplex con grandes terrazas y Ático con Terraza Privada
Bienvenido a una oportunidad única de vivir en una de las zonas más exclusivas de Barcelona. En el corazón de Sarria -Sant Gervasi, frente al encantador Jardín de las Tres Torres, se presenta esta promoción boutique de solo tres viviendas de lujo, donde el diseño contemporáneo, los acabados de alta gama y los amplios espacios exteriores se combinan para ofrecerte un estilo de vida inigualable.
¿Qué hace especial a esta promoción?
Solo 3 viviendas exclusivas en todo el edificio!
-Terrazas privadas de hasta 167 m² con vistas despejadas
-Diseños amplios, funcionales y luminosos
-Ubicación privilegiada en un entorno tranquilo y residencial
-Acabados premium y materiales y equipamiento de primera calidad
-Arquitectura moderna y elegante
-Aerotermia
-Domótica
Detalles de las viviendas disponibles:
Ático único en planta superior
-Superficie interior: 180 m²
-Terraza privada en la azotea de 167 m²
-3 amplios dormitorios y 4 baños
-Luz natural en todas las estancias y vistas panorámicas de la ciudad
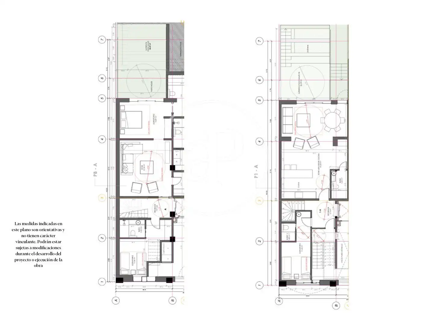
Dos dúplex en planta baja con jardín y espacios exteriores privados
-Viviendas de 194 m² y 205 m² interiores
-Cada uno con 78 m² de terraza/jardín
-3 dormitorios, 4 baños y zonas de día diáfanas
-Distribuciones pensadas para el confort y la vida familiar
Ubicación inmejorable:
Situada en una tranquila calle del codiciado barrio Sarria -Sant Gervasi, esta promoción combina privacidad, exclusividad y conexión directa con lo mejor de Barcelona: comercios selectos, colegios internacionales, restaurantes de autor y excelentes conexiones con el centro de la ciudad.
¿Estás buscando una vivienda única, con amplitud exterior, estilo y ubicación premium? Contáctanos y agenda tu visita a esta promoción de lujo en la zona mas buscada de Barcelona.
La exclusividad es limitada. ¡No dejes pasar esta oportunidad!
Algunas de estas imágenes han sido amuebladas con I.A. y pueden no corresponder a la realidad.
Característiques de l'habitatge
Característiques bàsiques
Exterior
Certificat energètic
Documentació disponible
Immobles d'aquesta promoció
2 Habitatges en aquesta promoció
Pertany a
Exclusiva Promoción en Sant Gervasi de solo 3 unidades
Promoció Des de 1.920.000 €
Barcelona Capital
- Habitacions:3
- Banys:4
- Superfície:De 197 m² a 205 m²
Tipus d'interès
Quota mensual estimada
6.843 €
Servei ofert per
Fotocasa no actua com a intermediari financer. La informació proporcionada té caràcter orientatiu, basant-se en informació pública al mercat. Serà l'entitat de crèdit qui contacti amb el potencial prestatari per negociar, facilitar i pactar les condicions financeres aplicables.
Desglossament de la hipoteca
La teva quota mensual
6.843 € *
Durant 30 anys (360 quotes)
Preu de l'immoble:
1.920.000 €
Impostos i despeses de la compra:
195.785 €
Cost total de l'immoble:
2.115.785 €
Estalvi aportat:
384.000 €
Import de la hipoteca:
1.731.785 €
Interessos totals:
731.567 €
Cost total amb hipoteca
2.847.352 €
Capital + interessos + impostos i despeses
Fotocasa no actua com a intermediari financer. La informació proporcionada té caràcter orientatiu, basant-se en informació pública al mercat. Serà l'entitat de crèdit qui contacti amb el potencial prestatari per negociar, facilitar i pactar les condicions financeres aplicables.