Planta baixa a Asdrúbal - Bahía Blanca
Asdrúbal - Bahía Blanca, Cádiz Capital
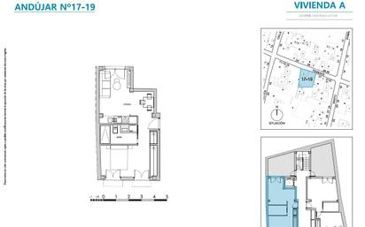
Vivienda a pie de playa en zona San Felipe. ¡Descubre tu nuevo hogar en la codiciada zona de San Felipe-Asdrúbal! Este magnífico piso a pie de playa te ofrece una oportunidad única para personalizar cada rincón a tu gusto. Con 142 m2 construidos y 120 m2 útiles, la vivienda se distribuye en un amplio salón comedor, cocina amueblada y equipada, cuatro dormitorios dobles y una pequeña habitación polivalente. Además, cuenta con dos baños completos, ideales para el día a día de cualquier familia. La propiedad, planta baja, situada haciendo esquina, es completamente exterior y goza de una luz natural envidiable gracias a su orientación este y sur. Desde sus ventanas podrás disfrutar de vistas a la Avenida principal y a la encantadora Plaza Asdrúbal. La finca, con pocos vecinos, garantiza tranquilidad y comodidad, y dispone de un sistema de videovigilancia para tu seguridad. El acceso al edificio es apto para personas con movilidad reducida y cuenta con doble acceso: desde la avenida principal y desde la Plaza Asdrúbal y en planta sótano encontrarás un trastero de generosas dimensiones para almacenar lo que necesites. La ubicación es inmejorable, a un paso de la playa Victoria y rodeada de parques, supermercados, colegios y centros médicos, mercado de abastos de El Rosario, parada de autobús delante de la vivienda, etc.... ¡No dejes pasar esta oportunidad y ven a visitarlo! Informamos a nuestros clientes que los gastos de Notaría, Gestoría, Impuestos, así como los honorarios de nuestra agencia no están incluidos en el precio de venta. Según Decreto 218/2005, del 11 de octubre.
- 5 habs·
- 2 baños·
- 142 m²·
- Baixos·
- Ascensor·
- Balcó·
- Traster