Casa adosada a Carrer de Bermejo, El Besós i el Maresme
El Besós i el Maresme, Barcelona Capital
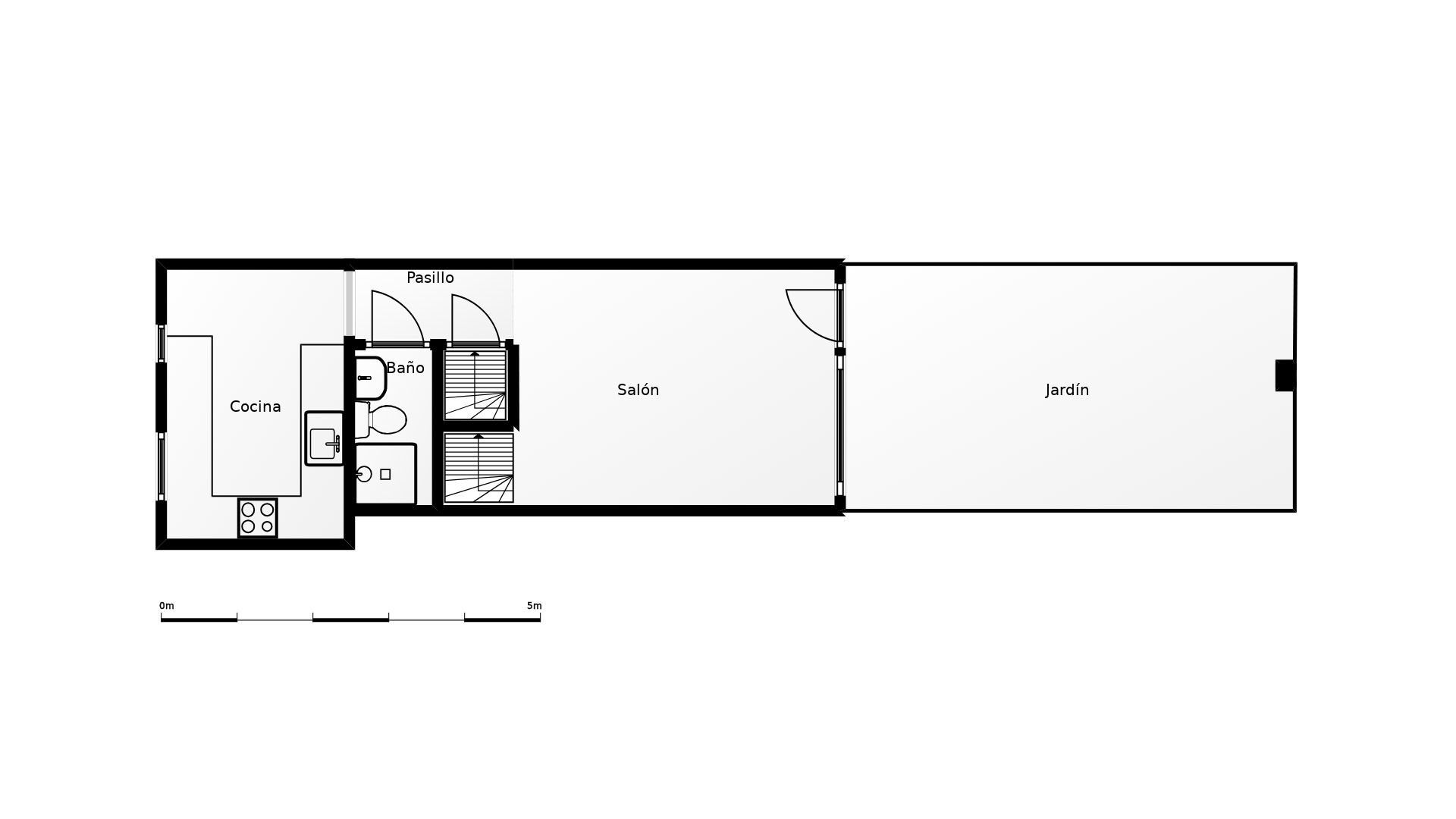
Se vende adosada, con una superficie útil aproximada de 50,69 m², distribuido en dos plantas. En planta baja dispone de: Jardín privado de aproximadamente 22,93 m² Porche Salón-comedor Cocina con salida a patio posterior de unos 4,20 m² Aseo Desde el comedor se accede mediante tres peldaños al aseo y, entre cocina y comedor, se encuentra la escalera que conduce a la planta superior, donde se ubican tres dormitorios. La vivienda forma parte de una finca urbana y cuenta con un coeficiente de participación del 5,88%. Ubicación: Situada a pocos metros de la estación de metro El Maresme | Fòrum (L4) y Besòs Mar (L4), así como de la parada de Tramvia T4 Fòrum, lo que garantiza una magnífica conexión con el resto de la ciudad. El inmueble necesita reformas, ideal para inversores o compradores que busquen personalizar la vivienda a su gusto.
- 2 habs·
- 1 bany·
- 67 m²
