Muchas veces nos encontramos con viviendas antiguas que no han sufrido ningún tipo de rehabilitación en 30 o 40 años. Es el caso de esta vivienda de 130 m2 con vistas al maravilloso parque del Oeste de Madrid, que necesitaba una profunda reforma.
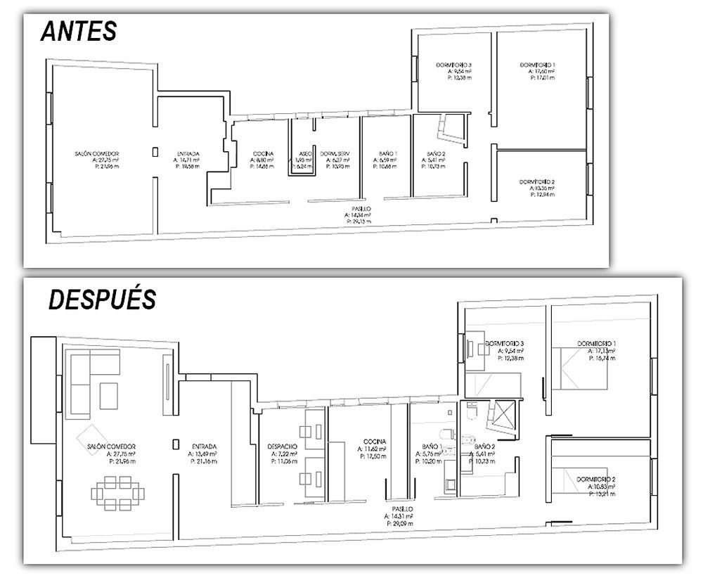
Los nuevos propietarios de la vivienda necesitaban tres habitaciones y un despacho, pero manteniendo los dos cuartos de baño principales, la cocina y el salón con balcones a la calle.
El principal reto con el que nos encontrábamos fue dotar de luminosidad a toda la vivienda, ya que inicialmente contaba con una carpintería oscura, paredes enteladas y armarios escondidos que, a su vez, escondían rincones desvencijados y más sorpresas, como por ejemplo una instalación de calefacción individual por carbón o un par de muros de carga que hicieron un poco más difícil la redistribución.
Distribución de los espacios para ganar luz natural

Fuente: Reformadisimo.es
Después de barajar diferentes opciones y teniendo en cuenta la existencia de muros de carga que condicionaban la distribución de los diferentes ambientes, el cliente eligió la distribución que mantenía el largo pasillo como eje principal de distribución de los espacios. De esta forma conseguimos crear un despacho para trabajar desde casa, una amplia cocina con office, dos cuartos de baño completos cerca de la habitación principal y de las secundarias, y un amplio salón.

Fuente: Reformadisimo.es
El aislamiento fue otro de los puntos fuertes de esta reforma. Nuestros clientes tenían un requisito que había que cumplir, que era el de crear una vivienda con eficiencia energética en todos los ámbitos de la casa. Se realizó un estudio detallado de las diferentes posibilidades y finalmente se decidió colocar un aislamiento bajo la nueva tarima flotante y colocar también falsos techos en toda la casa con su correspondiente aislamiento. También se incluyeron ventanas de PVC para ayudar a favorecer ese aislamiento con el exterior.
La cocina se renovó por completo – electrodomésticos incluidos-, además de armarios de gran capacidad y almacenaje.

Fuente: Reformadisimo.es
La vivienda cuenta con techos muy altos, y se decidió aprovechar esta circunstancia al máximo haciendo armarios a medida hasta el techo en todas las habitaciones y en la entrada de la vivienda, con un resultado sorprende por la luz de toda la vivienda, incluso el pasillo parece más corto gracias a la iluminación utilizada.

Fuente: Reformadisimo.es
Se trabajaron las texturas y los acabados, utilizando carpintería interior lacada blanca, se colocaron enormes armarios en todas las habitaciones e integrados en la entrada aprovechando cada rincón, y se eligieron cerámicas en tonos neutros elegidos.
El resultado cálido y agradable y su ubicación hacen de esta reforma un pequeño remanso de paz. ¡Echa un vistazo al vídeo!
Proyecto elaborado por Reformadísimo.





![Calculadora de plusvalía municipal [2026]](https://www.fotocasa.es/fotocasa-life/wp-content/uploads/2026/01/Calculadora-plusvalia-venta-355x230.jpg.optimal.jpg)
No entiendo eso de alejar aún más la cocina del salón, como en las casas antiguas. Muy poco práctica la reforma.