Contrata luz y gas online, sin permanencia

Rubí
Elysiam Real Estate presenta
Tu nuevo hogar en Rubí
¿Cansado de buscar casas viejas que necesitan mil reformas? ¡Es hora de cambiar el chip! Te proponemos algo mucho mejor: estrenar un hogar diseñado por y para ti en la Avinguda Can Mir, 41 (Rubí). Por 349.000 €, disfruta de una casa moderna, eficiente y con un jardín espectacular.
Tú eliges el tamaño y el estilo:
• ¿Se te quedan cortos 90 m²? ¡No hay problema! El proyecto es totalmente personalizable y ampliable. Si necesitas más metros desde el principio o quieres una casa más grande, podemos construirla a la medida de tus necesidades.
• Tú eliges el sistema constructivo: Te ofrecemos la libertad de elegir entre obra tradicional o construcción en hormigón, ¡ambas opciones al mismo precio! Elige la solidez de siempre o la rapidez y eficiencia del hormigón.
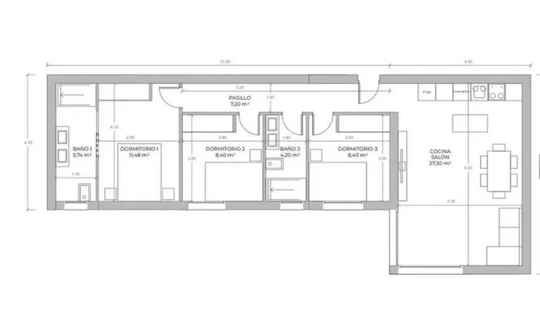
• Distribución flexible: De base, cuentas con 3 habitaciones (una suite principal y dos individuales) y un concepto abierto de cocina y salón para maximizar la luz, pero puedes cambiar la distribución como prefieras.
• Un jardín de cine: Con 500 m² de parcela, tienes espacio de sobra para todo: huerto, zona de juegos y esa piscina (opcional) que tanto apetece en verano.
Sol, luz y ubicación estratégica:
• Orientación perfecta: Disfruta del sol de mañana en la fachada delantera y de tardes increíbles en el jardín trasero, la ubicación ideal para la zona de relax.
• Muy bien conectado: Autobús urbano casi en la puerta para ir al centro de Rubí o a la estación de FGC. Estarás en Sant Cugat en 10 min y en Barcelona en unos 35 min.
• Servicios cerca: A un paso de colegios como el Teresa Altet y de todos los servicios de la ciudad.
Inversión y facilidades:
• PVP Final: 349.000 € (Proyecto llave en mano para 90 m²).
• ¡Aceptamos su vivienda a cambio!
• Si necesitas financiación, te la proporcionamos
• Gestión integral: Nosotros nos encargamos de todo, desde los permisos hasta la entrega de llaves. Tú solo eliges los acabados.
________________________________________
Pertenece a la promoción
Avinguda de Can Mir, Rubí
Tipo de interés
Cuota mensual estimada
1.250 €
Servicio ofrecido por
Fotocasa no actúa como intermediario financiero. La información proporcionada tiene carácter orientativo, basándose en información pública en el mercado. Será la entidad de crédito quién contacte con el potencial prestatario para negociar, facilitar y pactar las condiciones financieras aplicables.
Desglose de la hipoteca
Tu cuota mensual
1.250 € *
Durante 30 años (360 cuotas)
Precio del inmueble:
349.000 €
Impuestos y gastos de la compra:
37.099 €
Coste total del inmueble:
386.099 €
Ahorro aportado:
69.800 €
Importe de la hipoteca:
316.299 €
Intereses totales:
133.616 €
Coste total con hipoteca
519.715 €
Capital + intereses + impuestos y gastos
Fotocasa no actúa como intermediario financiero. La información proporcionada tiene carácter orientativo, basándose en información pública en el mercado. Será la entidad de crédito quién contacte con el potencial prestatario para negociar, facilitar y pactar las condiciones financieras aplicables.
Contrata luz y gas online, sin permanencia

Elige la Fibra que mejor se adapte a ti.

Cuéntanos qué has visto para poder corregirlo.