Contrata luz y gas online, sin permanencia
- 7 habs.
- 4 baños
- 450 m²
Casa o chalet en venta en Petra
Petra
Esta magnífica finca se encuentra entre los encantadores pueblos de Sant Joan y Petra, dos localidades tradicionales mallorquinas conocidas por su ambiente tranquilo y auténtico. En una suave elevación, la propiedad disfruta de total privacidad y vistas abiertas al nordeste, perfectas para contemplar la serenidad de los amaneceres.
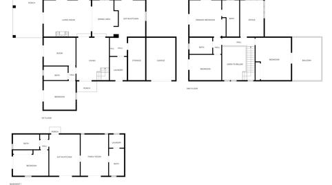
El terreno se extiende más de 24.000 m², ofreciendo espacio, privacidad y una amplia gama de posibilidades. El inmueble consta de dos residencias: la casa principal y una casa de invitados independiente que, en conjunto, suman unos 448 m² de superficie construida y un total de siete dormitorios.
La casa principal es ideal tanto como residencia familiar permanente como para vacaciones. Su fachada de piedra natural, su gran piscina y la casa para invitados le confieren un encanto mediterráneo atemporal. En la planta baja de la casa principal, hay dos dormitorios que comparten un baño, un amplio y acogedor salón y un luminoso comedor conectado a la cocina totalmente equipada. Todas las habitaciones tienen acceso directo a terrazas cubiertas, creando una fluida combinación entre la vida interior y exterior. El jardín maduro, con vegetación autóctona, ofrece un ambiente privado y acogedor. Además, el garaje doble añade gran espacio para vehículos y trastero, y acceso directo a la despensa y la a cocina para mayor comodidad.
En la planta superior se encuentran cuatro amplios dormitorios. Uno incluye baño integrado y dos ofrecen acceso a amplias terrazas privadas, ideales para relajarse y disfrutar de las vistas. La casa está equipada con calefacción por radiadores. Los cálidos suelos de terracota predominan en la planta baja, mientras que la planta superior cuenta con elegantes y cómodos suelos de madera.
Otra de las características destacadas de la propiedad es la impresionante piscina con 90 m² de superficie de agua, perfecta para refrescarse durante los meses más cálidos y disfrutar del entorno natural de la finca.
El actual propietario ha plantado olivos y vides en el terreno, lo que ofrece la oportunidad de retomar el cultivo a pequeña escala y disfrutar de su propia cosecha artesanal.
El equipamiento incluye también calefacción por suelo radiante en la casa de invitados, calefacción por radiadores con caldera de gasóleo en la casa principal, aire acondicionado con «splits», suelos de terracota y madera, pozo privado, conexión a la red eléctrica, chimenea, garaje doble, la gran piscina y el terreno con olivos y viñedos.
¡Contáctenos hoy mismo para concertar una visita!
Características
Tipo de inmueble
Casa o chaletDisponibilidad
Sin restriccionesAscensor
NoAmueblado
NoEnergía
Etiqueta de calificación energética:EEmisiones:201.74 kg CO₂ m² / añoEmisiones
Etiqueta de calificación energética:EEmisiones:56.99 kg CO₂ m² / año
Tipo de interés
Cuota mensual estimada
9.869 €
Servicio ofrecido por
Fotocasa no actúa como intermediario financiero. La información proporcionada tiene carácter orientativo, basándose en información pública en el mercado. Será la entidad de crédito quién contacte con el potencial prestatario para negociar, facilitar y pactar las condiciones financieras aplicables.
Desglose de la hipoteca
Tu cuota mensual
9.869 € *
Durante 30 años (360 cuotas)
Precio del inmueble:
2.900.000 €
Impuestos y gastos de la compra:
177.785 €
Coste total del inmueble:
3.077.785 €
Ahorro aportado:
580.000 €
Importe de la hipoteca:
2.497.785 €
Intereses totales:
1.055.152 €
Coste total con hipoteca
4.132.937 €
Capital + intereses + impuestos y gastos
Fotocasa no actúa como intermediario financiero. La información proporcionada tiene carácter orientativo, basándose en información pública en el mercado. Será la entidad de crédito quién contacte con el potencial prestatario para negociar, facilitar y pactar las condiciones financieras aplicables.
Elige la Fibra que mejor se adapte a ti.