Casa-Chalet en venta en Avenida Flamenco, Bellavista
Sevilla Capital
Pertenece a la promoción Sevilla Homes Design
Viviendas unifamiliares adosadas de obra nueva en Sevilla. Los próximos 7, 8 y 9 de mayo, te invitamos a las Jornadas de Puertas Abiertas en Sevilla Homes Design & Club para que conozcas tu futuro hogar. Apúntate en neinorhomes.com
Sevilla Homes Design es un conjunto residencial de 83 viviendas unifamiliares adosadas y pareadas en esquinas, de 4 y 5 dormitorios. Las viviendas destacan por su diseño moderno y actual con una cómoda distribución en dos plantas de altura con espaciosas estancias, además de contar con jardín privado y terraza en la planta superior. Las zonas comunes disponen de circuito de running y paseo, así como de una zona arbolada y un área infantil que, junto con los amplios jardines privados, permiten disfrutar de un entorno natural donde disfrutar de la máxima tranquilidad de inigualables momentos de relax.
Tu vivienda de obra nueva en Sevilla, con las mejores zonas comunes.
Sevilla Homes Design forma parte del complejo residencial SEVILLA HOMES CLUB que dispone de un exclusivo club privado, solo para propietarios. Este Living Club ofrece una experiencia pionera en zonas comunes para quienes quieren disfrutar de un entorno social selecto, elevando a categoría de Resort su hogar, pues incluye servicio de restauración, pistas de pádel, piscina exterior, piscina cubierta, gimnasio y mucho más.
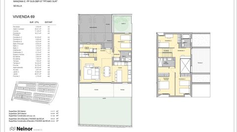
Características de la vivienda
Características básicas
Interior
Certificado energético
Inmuebles de esta promoción
9 Viviendas en esta promoción
Pertenece a la promoción
Sevilla Homes Design
Promoción Desde 358.000 €
Avenida Flamenco, Sevilla Capital
- Habitaciones:De 4 a 5
- Baños:3
- Superficie:De 138 m² a 154 m²
Tipo de interés
Cuota mensual estimada
1.310 €
Servicio ofrecido por
Fotocasa no actúa como intermediario financiero. La información proporcionada tiene carácter orientativo, basándose en información pública en el mercado. Será la entidad de crédito quién contacte con el potencial prestatario para negociar, facilitar y pactar las condiciones financieras aplicables.
Desglose de la hipoteca
Tu cuota mensual
1.310 € *
Durante 30 años (360 cuotas)
Precio del inmueble:
378.500 €
Impuestos y gastos de la compra:
28.694 €
Coste total del inmueble:
407.194 €
Ahorro aportado:
75.700 €
Importe de la hipoteca:
331.494 €
Intereses totales:
140.035 €
Coste total con hipoteca
547.229 €
Capital + intereses + impuestos y gastos
Fotocasa no actúa como intermediario financiero. La información proporcionada tiene carácter orientativo, basándose en información pública en el mercado. Será la entidad de crédito quién contacte con el potencial prestatario para negociar, facilitar y pactar las condiciones financieras aplicables.