Contrata luz y gas online, sin permanencia
- 5 habs.
- 1 baño
- 215 m²
- 169 m² terreno
Casa o chalet en venta en Llucmajor pueblo
Llucmajor
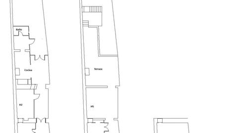
Encantadora casa entre medianeras en el pintoresco pueblo de Llucmajor, una ubicación que combina tranquilidad y tradición mallorquina con una excelente conexión a la ciudad y al aeropuerto. La propiedad, de dos plantas, buhardilla y "celler" (pequeña bodega), es ideal para quienes buscan un hogar con carácter y múltiples posibilidades de personalización. Además, cuenta con varias terrazas y un amplio jardín, perfecto para disfrutar del clima y el estilo de vida mediterráneo.
La planta baja, en buen estado de conservación, incluye un amplio recibidor, dos habitaciones, una gran cocina con dos chimeneas que aportan calidez y personalidad al espacio, y un baño completo. Desde aquí se accede al "celler" y al jardín, brindando una conexión fluida entre los espacios interiores y exteriores.
En la planta superior, destaca un gran espacio diáfano con una habitación, una terraza y acceso mediante escalera a la buhardilla en la parte superior. Esta zona, que requiere una mayor actualización, ofrece un sinfín de posibilidades para adaptarla a tus necesidades y preferencias.
La casa necesita una reforma integral para poder ser habitada, lo que brinda la oportunidad de diseñarla completamente a tu gusto.
Servicios y legalidad:
La vivienda no dispone de agua corriente, pero cuenta con un gran aljibe que garantiza el suministro.
No está conectada a la red de alcantarillado, pero todas las canalizaciones de agua, alcantarillado y gas ciudad pasan por delante de la puerta. Solo es necesario solicitar la licencia correspondiente para la conexión a la red municipal.
La propiedad es completamente legal, cuenta con cédula de habitabilidad y está inscrita en el Registro de la Propiedad.
El precio es negociable.
Situada en Llucmajor, la casa está a tan solo 25 minutos en coche de Palma y a 15 minutos del aeropuerto, lo que la convierte en una opción excelente tanto para vivienda habitual como para residencia de temporada. Llucmajor ofrece todos los servicios, además de un encanto auténtico, con su mercado tradicional, cafés, tiendas locales y acceso a algunas de las playas y calas más hermosas de la isla.
Hogares y Soluciones es un establecimiento inscrito en el Registro Oficial de Agentes Inmobiliarios de las Islas Baleares con número de registro: GOIBE98187/2024.
Características
Tipo de inmueble
Casa o chaletDisponibilidad
Sin restriccionesOrientación
OesteEstado
A reformarAscensor
NoAmueblado
NoEnergía
Etiqueta de calificación energética:GEmisiones:999 kg CO₂ m² / añoEmisiones
Etiqueta de calificación energética:GEmisiones:999 kg CO₂ m² / año
- Jardín Privado
- Terraza
- Patio
Tipo de interés
Cuota mensual estimada
1.198 €
Servicio ofrecido por
Fotocasa no actúa como intermediario financiero. La información proporcionada tiene carácter orientativo, basándose en información pública en el mercado. Será la entidad de crédito quién contacte con el potencial prestatario para negociar, facilitar y pactar las condiciones financieras aplicables.
Desglose de la hipoteca
Tu cuota mensual
1.198 € *
Durante 30 años (360 cuotas)
Precio del inmueble:
350.000 €
Impuestos y gastos de la compra:
23.199 €
Coste total del inmueble:
373.199 €
Ahorro aportado:
70.000 €
Importe de la hipoteca:
303.199 €
Intereses totales:
128.082 €
Coste total con hipoteca
501.281 €
Capital + intereses + impuestos y gastos
Fotocasa no actúa como intermediario financiero. La información proporcionada tiene carácter orientativo, basándose en información pública en el mercado. Será la entidad de crédito quién contacte con el potencial prestatario para negociar, facilitar y pactar las condiciones financieras aplicables.
Elige la Fibra que mejor se adapte a ti.