Contrata luz y gas online, sin permanencia
- 500 m²
- 500 m² terreno
Residencial en venta en Rúa Carrizas, Inás
Oleiros
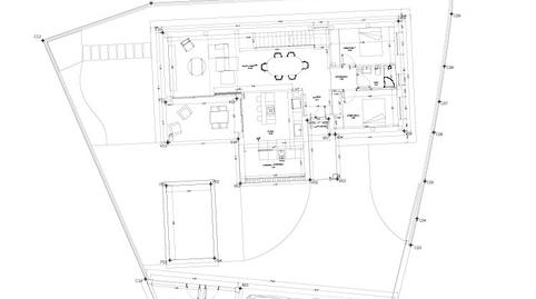
Oportunidad única para construir tu futuro hogar en una de las zonas más demandadas de Oleiros. Se vende parcela urbana de 500 m² en Iñás, en un entorno residencial tranquilo y bien comunicado, a pocos minutos de A Coruña y de las principales playas del municipio.
La parcela se comercializa con proyecto de vivienda unifamiliar de diseño moderno ya visado y licencia en tramitación, lo que permite agilizar significativamente los plazos de construcción.
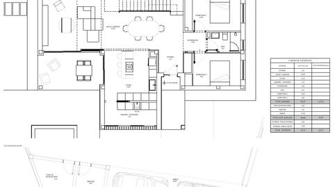
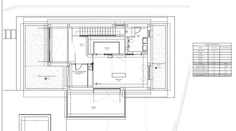
El proyecto contempla un moderno chalet de 200 m² construidos, distribuido en planta baja y primera, con una arquitectura pensada para aprovechar al máximo la luz natural y la comodidad del día a día. La vivienda incluye terrazas exteriores, garaje anexo y piscina exterior, creando un espacio ideal para disfrutar de la vida al aire libre en la privacidad de tu propio hogar. Una excelente oportunidad para quienes desean construir una vivienda exclusiva en una ubicación privilegiada, combinando tranquilidad, cercanía a la ciudad y calidad de vida en un entorno residencial consolidado y bien comunicado
Una inversión ideal para vivir en una vivienda de alto valor ubicada en una de las zonas con mayor demanda del área de Oleiros que Northwind inmuebles comercializa por un precio de 99.000 € + impuestos.
Características
Tipo de inmueble
Residencial
Tipo de interés
Cuota mensual estimada
343 €
Servicio ofrecido por
Fotocasa no actúa como intermediario financiero. La información proporcionada tiene carácter orientativo, basándose en información pública en el mercado. Será la entidad de crédito quién contacte con el potencial prestatario para negociar, facilitar y pactar las condiciones financieras aplicables.
Desglose de la hipoteca
Tu cuota mensual
343 € *
Durante 30 años (360 cuotas)
Precio del inmueble:
99.000 €
Impuestos y gastos de la compra:
7.681 €
Coste total del inmueble:
106.681 €
Ahorro aportado:
19.800 €
Importe de la hipoteca:
86.881 €
Intereses totales:
36.702 €
Coste total con hipoteca
143.383 €
Capital + intereses + impuestos y gastos
Fotocasa no actúa como intermediario financiero. La información proporcionada tiene carácter orientativo, basándose en información pública en el mercado. Será la entidad de crédito quién contacte con el potencial prestatario para negociar, facilitar y pactar las condiciones financieras aplicables.
Elige la Fibra que mejor se adapte a ti.