Contrata luz y gas online, sin permanencia

Obra Nueva
Pertenece a la promoción
Carrer de Jaén, 12, Canyelles
Elysiam Real Estate presenta esta exclusiva promoción de obra nueva en Canyelles.
En un mercado donde abundan las viviendas que requieren reformas interminables, esta propuesta representa algo muy distinto: la oportunidad de estrenar un hogar moderno, eficiente y diseñado completamente a tu medida. Ubicada en Carrer de Jaén 12, esta promoción te ofrece la posibilidad de construir la casa que realmente quieres, adaptada a tu estilo de vida desde el primer momento. ACEPTAMOS SU VIVIENDA A CAMBIO!
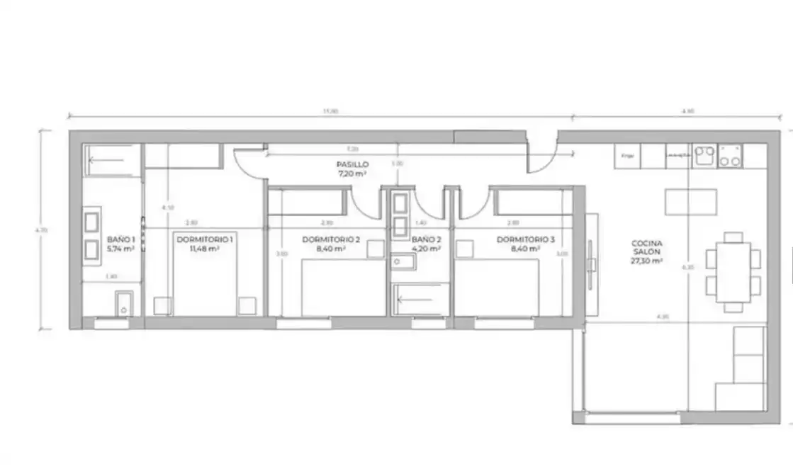
El proyecto parte de una vivienda de 90 m², con una distribución pensada para aprovechar al máximo la luz natural y el confort diario. El diseño incluye tres habitaciones —una suite principal y dos dormitorios individuales— junto a una amplia zona de día de concepto abierto que integra cocina y salón, creando un espacio luminoso, funcional y contemporáneo.
Pero lo verdaderamente especial de esta propiedad es su capacidad de adaptación. El proyecto es totalmente personalizable y ampliable. Si necesitas más superficie, una distribución diferente o un estilo arquitectónico concreto, la vivienda puede ajustarse a tus necesidades para crear un hogar verdaderamente único.
Además, tendrás la libertad de elegir el sistema constructivo que prefieras. Podrás optar entre obra tradicional o construcción en hormigón, ambas opciones disponibles al mismo precio, combinando solidez, eficiencia y rapidez de ejecución según tus preferencias.
La vivienda se sitúa sobre una parcela de 457 m², un espacio generoso que abre la puerta a múltiples posibilidades: jardín paisajístico, zona de juegos, huerto privado o una piscina opcional para disfrutar de los meses de verano en total privacidad.
La orientación de la parcela ha sido cuidadosamente valorada para garantizar el máximo aprovechamiento del sol. La fachada principal recibe la luz de la mañana, mientras que el jardín trasero se convierte en el escenario perfecto para disfrutar de largas tardes al aire libre.
Ubicación en el tranquilo municipio de Canyelles, el entorno perfecto para quienes buscan calidad de vida. Rodeada por la belleza natural del Parque de Olèrdola y el Garraf, ideal para compartir momentos al aire libre. Todo ello, con la ventaja de estar a tan solo 15 minutos de las preciosas playas de Sitges y Vilanova i la Geltrú. ¡La combinación perfecta entre mar, montaña y tranquilidad!
Todo ello con un precio final de 299.000 €, correspondiente al proyecto llave en mano para una vivienda de 90 m².
Elysiam Real Estate ofrece además facilidades para que el proceso sea sencillo y cómodo: se acepta vivienda como parte de pago, posibilidad de financiación personalizada y una gestión integral del proyecto. Nuestro equipo se encarga de todo, desde la tramitación de permisos hasta la entrega de llaves. Tú solo tendrás que elegir los acabados y empezar a imaginar tu nueva vida aquí.
Una oportunidad única de crear un hogar a medida en una ubicación estratégica, combinando diseño contemporáneo, confort y calidad de vida.
Para más información o para conocer todos los detalles del proyecto, estaremos encantados de atenderte.
1 Vivienda en esta promoción
Tipo de interés
Cuota mensual estimada
1.071 €
Servicio ofrecido por
Fotocasa no actúa como intermediario financiero. La información proporcionada tiene carácter orientativo, basándose en información pública en el mercado. Será la entidad de crédito quién contacte con el potencial prestatario para negociar, facilitar y pactar las condiciones financieras aplicables.
Desglose de la hipoteca
Tu cuota mensual
1.071 € *
Durante 30 años (360 cuotas)
Precio del inmueble:
299.000 €
Impuestos y gastos de la compra:
31.971 €
Coste total del inmueble:
330.971 €
Ahorro aportado:
59.800 €
Importe de la hipoteca:
271.171 €
Intereses totales:
114.552 €
Coste total con hipoteca
445.523 €
Capital + intereses + impuestos y gastos
Fotocasa no actúa como intermediario financiero. La información proporcionada tiene carácter orientativo, basándose en información pública en el mercado. Será la entidad de crédito quién contacte con el potencial prestatario para negociar, facilitar y pactar las condiciones financieras aplicables.
Contrata luz y gas online, sin permanencia

Elige la Fibra que mejor se adapte a ti.
