Contrata luz y gas online, sin permanencia
Descripción
Desde Elysiam Real Estate le presentamos en exclusiva esta promoción con proyecto a medida, ubicada en C/ Ourense , Urbanización Les Palmeres, 08811 Canyelles, Barcelona.
El proyecto se desarrolla sobre una parcela urbana donde se construirán dos casas PAREADAS o una vivienda unifamiliar, en un entorno tranquilo, elevado y rodeado de la naturaleza característica del Garraf.
La ubicación en Les Palmeres ofrece un equilibrio perfecto entre la serenidad de la montaña y la proximidad a los núcleos urbanos y playas de la costa catalana.
Esta vivienda ha sido concebida bajo criterios de diseño contemporáneo, funcionalidad y eficiencia energética, ofreciendo espacios amplios, luminosos y adaptados a las necesidades de la vida moderna.
CARACTERÍSTICAS:
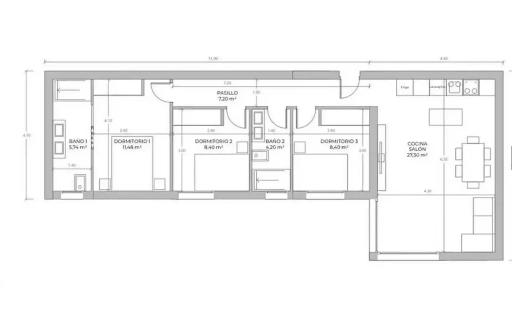
Superficie total construida: 90 m²
Vivienda: 90 m²
Garaje privado: Opcional
Parcela: Superficie proporcional con posibilidad de jardín paisajístico y piscina opcional.
Distribución casa en una planta:
Planta baja:
Salón-comedor con amplios ventanales y acceso directo al jardín privado.
Cocina integrada o independiente, según preferencia del cliente.
Tres habitaciones, destacando una habitación tipo suite con baño y vestidor.
Dos baños completos con acabados de alta gama.
Orientación: Optimizada para garantizar iluminación natural durante todo el día y aprovechar las vistas despejadas de la zona.
Eficiencia energética: Vivienda diseñada bajo estándares de sostenibilidad y bajo consumo energético.
Acabados de primera calidad en pavimentos, carpinterías, cerrajería y sistemas de climatización.
Proyecto personalizable, con posibilidad de adaptar distribución, materiales y equipamientos según las preferencias del comprador.
ENTORNO:
La propiedad se encuentra en una ubicación privilegiada dentro de la urbanización Les Palmeres, conocida por su tranquilidad y aire puro.
Distancias clave:
Centro de Canyelles: 5 minutos
Vilanova i la Geltrú / Playas: 10-12 minutos
Sitges: 15 minutos
Barcelona: 45 minutos (vía C-32 o C-15 / AP-7)
Aeropuerto de El Prat: 35 minutos
Servicios cercanos:
Supermercados, colegios, centros médicos y restauración en el núcleo de Canyelles y alrededores. Acceso rápido a rutas de senderismo y zonas verdes protegidas.
DOCUMENTACIÓN:
Toda la documentación está disponible para su consulta por parte de los interesados, garantizando la viabilidad técnica y legal de la promoción.
Esta promoción representa una oportunidad única para estrenar un hogar a medida, combinando confort moderno, privacidad y una ubicación estratégica entre el mar y la montaña.
Elysiam Real Estate – Creamos hogares a la altura de sus expectativas.
¡ACEPTAMOS SU VIVIENDA A CAMBIO!
Inmuebles de esta promoción
1 Vivienda en esta promoción
Planos de la promoción
Características de la vivienda
Características básicas
Certificado energético
Tipo de interés
Cuota mensual estimada
1.164 €
Servicio ofrecido por
Fotocasa no actúa como intermediario financiero. La información proporcionada tiene carácter orientativo, basándose en información pública en el mercado. Será la entidad de crédito quién contacte con el potencial prestatario para negociar, facilitar y pactar las condiciones financieras aplicables.
Desglose de la hipoteca
Tu cuota mensual
1.164 € *
Durante 30 años (360 cuotas)
Precio del inmueble:
325.000 €
Impuestos y gastos de la compra:
34.699 €
Coste total del inmueble:
359.699 €
Ahorro aportado:
65.000 €
Importe de la hipoteca:
294.699 €
Intereses totales:
124.491 €
Coste total con hipoteca
484.190 €
Capital + intereses + impuestos y gastos
Fotocasa no actúa como intermediario financiero. La información proporcionada tiene carácter orientativo, basándose en información pública en el mercado. Será la entidad de crédito quién contacte con el potencial prestatario para negociar, facilitar y pactar las condiciones financieras aplicables.
Elige la Fibra que mejor se adapte a ti.