185.000 €
Pis a ACEBO, Alameda
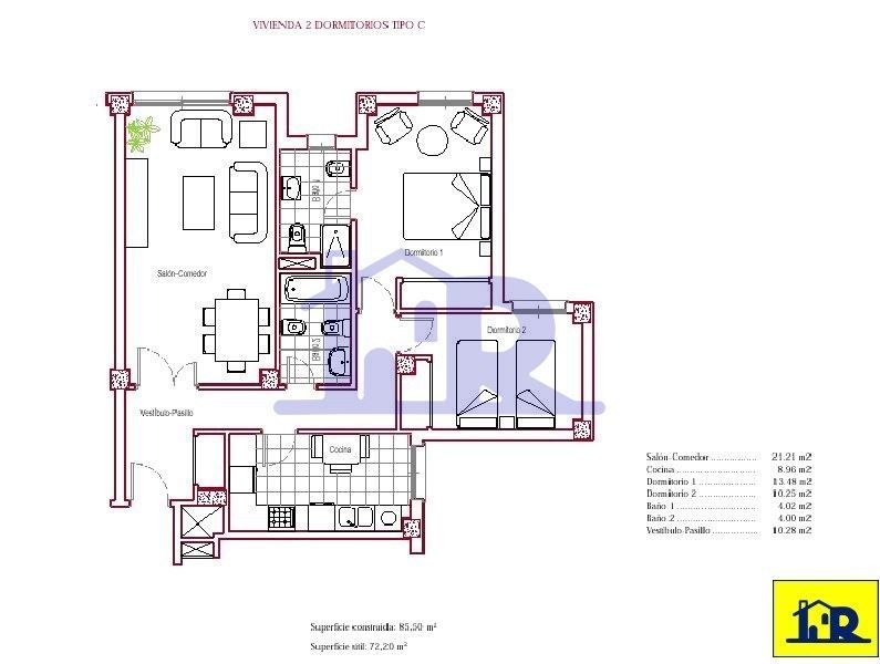
- 2 habs ·
- 2 baños ·
- 100 m² ·
- 3ª planta ·
- Ascensor ·
- Pàrquing ·
- Piscina
- Calefacció

INMOBILIARIA ROMERO, vende en Residencial Alameda, precioso apartamento de dos dormitorios, dos baños, con hidromasaje y ventana. ( principal en suite) amplio salón, cocina amueblada. Incluido en el precio, cuenta con una plaza de garaje y cuarto trastero. La urbanización tiene amplias zonas verdes, pista multideportivas, piscinas, ( y una comunidad muy económica). El edificio y la urbanización son totalmente accesibles .Cuenta con dos ascensores ( 6 personas) y portal y accesos comunes en mármol . ¡¡¡¡¡¡¡¡OPORTUNIDAD ¡¡¡¡¡¡¡¡¡¡, Puede ampliar información en INMOBILIARIA ROMERO, en Cuenca, Cervantres 7 bajo o en el teléfono 969227085. INMOBILIARIA ROMERO, no cobra honorarios al comprador.
