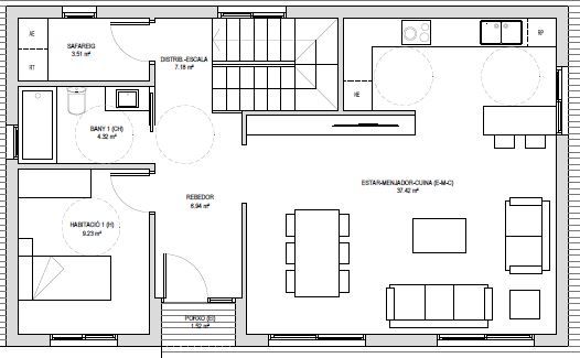
mc consulting vende. Casa unifamiliar de obra nueva en L’Ametlla del Vallès. Vivienda unifamiliar de obra nueva situada en un entorno tranquilo con vistas abiertas a los Cingles. Casa moderna de 147 m2 construidos, con 3 habitaciones, diseñada para ofrecer comodidad, luz natural y funcionalidad. Distribución: Planta baja: – Salón-comedor con cocina abierta – 1 habitación doble – 1 baño completo – Zona de máquinas – Lavadero – Salida directa al jardín con terraza – Posibilidad de piscina Planta primera: – Suite principal con vestidor – 1 habitación doble – 1 baño completo – Zona diáfana tipo estudio/despacho (posibilidad de 4ª habitación) Carport incluido. Construcción con alta eficiencia energética y certificación energética A. Ubicada en Can Reixac, zona residencial muy tranquila de L’Ametlla del Vallès, ideal para vivir con calidad de vida. *El precio anunciado no incluye impuestos ni gastos de notaría y registro. **Home Staging Virtual: imágenes generadas para visualizar el potencial del espacio, corresponden a una propuesta de decoración no vinculante.
