Local a Carrer de Rius i Carrió, Collblanc
Collblanc, L'Hospitalet de Llobregat
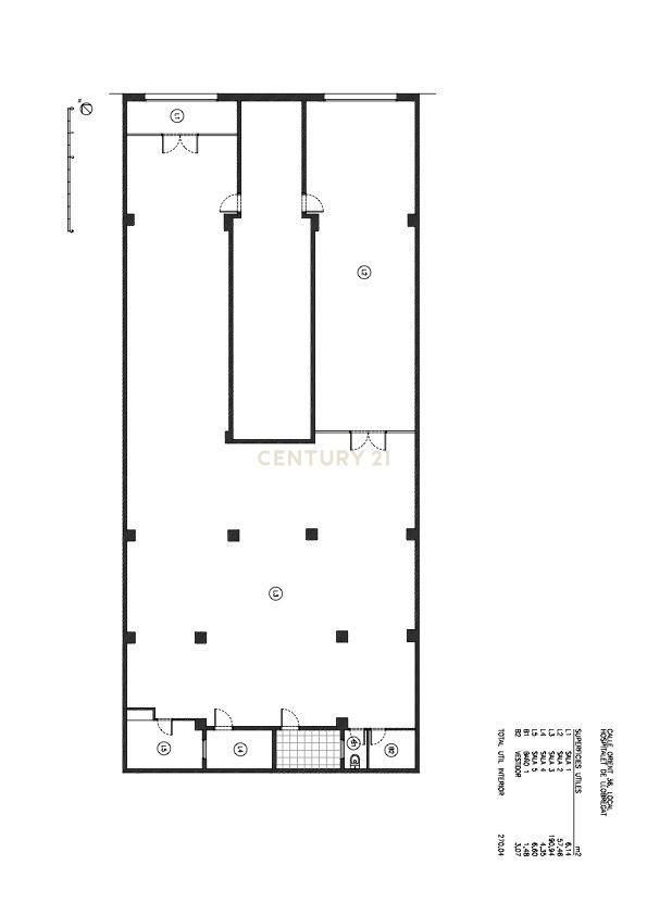
Se vende espectacular loft en planta sótano. Completamente reformado. Este amplio espacio de 130 m² construidos y 117 m² útiles destaca por su luminosidad, gracias a los lucernarios en el techo que permiten la entrada de luz natural. La fachada acristalada no solo proporciona un diseño moderno, sino que también garantiza un ambiente agradable y acogedor. El loft cuenta con tres estancias versátiles, perfectas para adaptarse a tus necesidades, ya sea como oficina, estudio o área de descanso. La cocina completamente equipada y el baño completo, añaden comodidad y funcionalidad a este espacio. Además, el acceso independiente desde la planta baja ofrece privacidad y facilidad de uso. El edificio fué construido en el año 2007, finca con ascensor, muy bien conservada, con sólo 4 vecinos. Excelente ubicación, en la calle Rius i Carrió, junto a la Travessera de Collblanc. Se encuentra en excelente estado y listo para ser personalizado. No dejes pasar la oportunidad de invertir en un local que combina estilo y practicidad. ¡Contáctanos para más información y ven a verlo! No dispone de Cédula de Habitabilidad.
- 1 bany·
- 130 m²·
- Calefacció·
- Aire condicionat
