Local a Calle de la Cruz, Casco Viejo
Casco Viejo, Bilbao
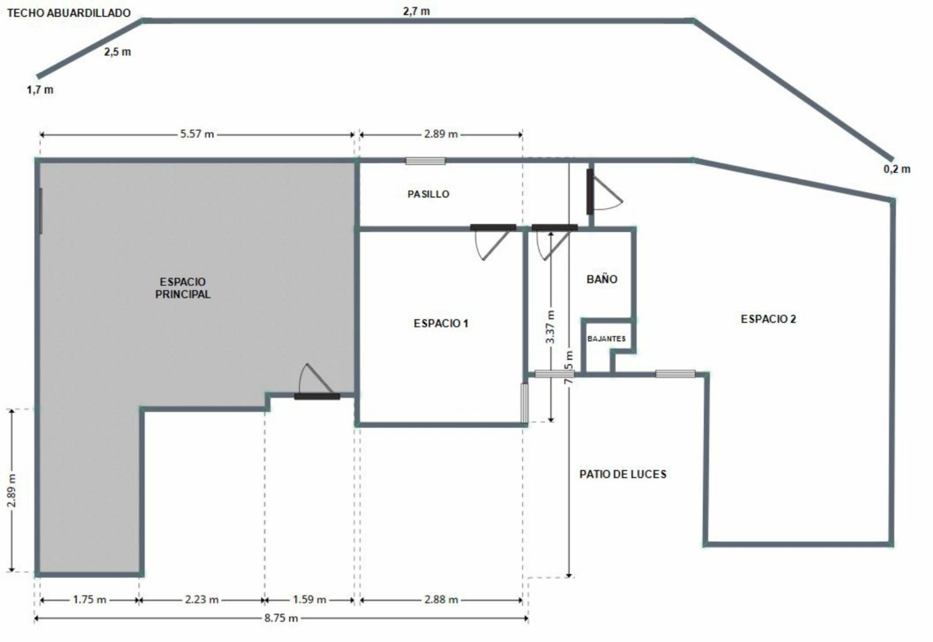
Estudio bajo cubierta en calle La Cruz 5 Se vende local con una superficie de 95metros cuadrados construidos en edificio con ascensor. Dividido en tres habitaciones, dos de ellas con ventana y luz natural, consta de baño completo. Es ideal para despacho profesional, espacio de coworking o inversión para construcción de trasteros. Bien situado junto a la boca de metro de Unamuno, su precio de venta es de 150.000€. Otros datos de interés. El local está en una zona tranquila, con mucho tránsito peatonal. Su ubicación es buena ya que está en el corazón del Casco Viejo, rodeado de toda clase de servicios y comercios junto a parada de metro y a 5 m caminando de autobús, tranvía y euskotren. Espacio muy luminoso y en perfectas condiciones.
- 95 m²
