Apartamento en venta en Paseo de Sancha, La Malagueta - Monte Sancha
Málaga Capital
Pertenece a la promoción Luxy Sancha
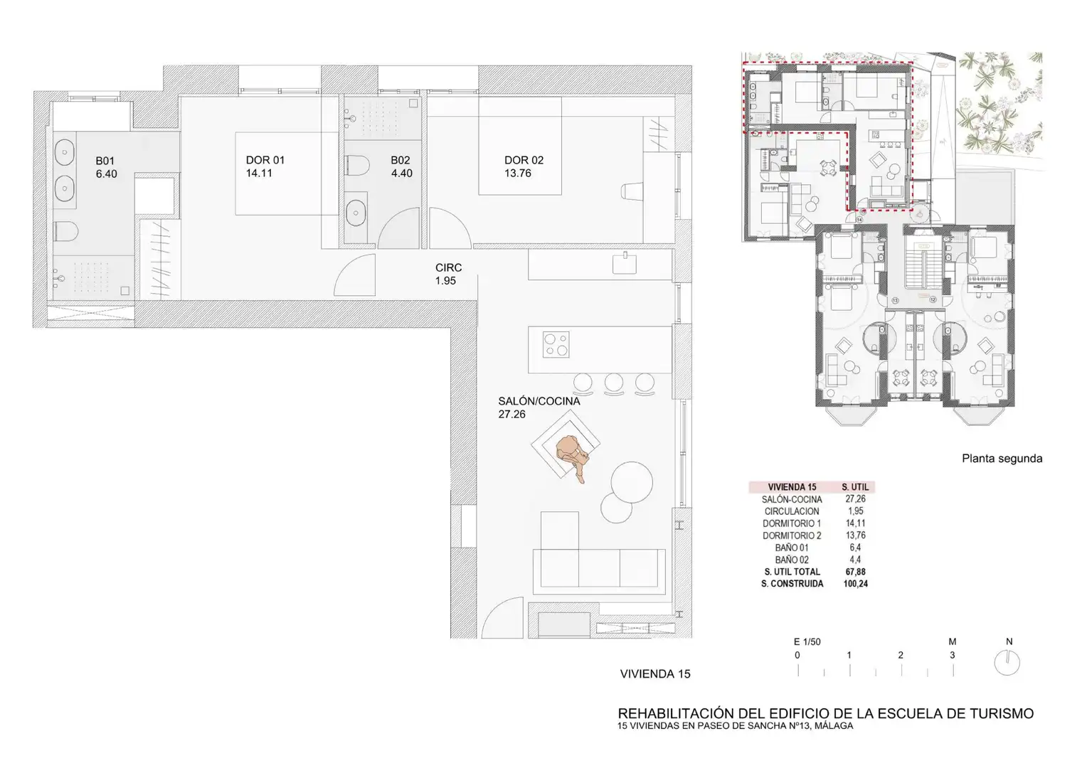
Presentamos un exclusivo apartamento de dos dormitorios y dos baños situado en una de las promociones más distinguidas de Málaga.
Ubicado en el emblemático Paseo de Sancha, a tan solo 150 metros del mar, este apartamento combina el encanto de un edificio histórico completamente restaurado con la elegancia de acabados modernos y materiales de alta calidad.
El inmueble ofrece espacios amplios y luminosos, diseñados para brindar el máximo confort y funcionalidad, con acceso a zonas comunes de alto nivel entre las que destaca una espectacular piscina infinity con vistas al mar.
Vivir en Luxy Sancha es disfrutar de la cercanía al Mediterráneo, de una arquitectura con historia y de la tranquilidad de una comunidad selecta en una ubicación privilegiada.
No dejes pasar esta oportunidad de vivir con estilo en el corazón de Málaga. Contáctanos para más información o para concertar una visita.
Características de la vivienda
Características básicas
Interior
Certificado energético
Documentación disponible
Inmuebles de esta promoción
14 Viviendas en esta promoción
Pertenece a la promoción
Luxy Sancha
Promoción Desde 472.440 €
Paseo de Sancha, Málaga Capital
- Habitaciones:A consultar
- Baños:De 1 a 2
- Superficie:De 42 m² a 110 m²