Contrata luz y gas online, sin permanencia
Casa-Chalet en venta en Avinguda de Ca L'estapé, 16, Lliçà de Vall
Lliçà de Vall
Pertenece a la promoción Lliça De Vall
Elysiam Real Estate presenta:
Una oportunidad extraordinaria para crear tu vivienda soñada desde cero, en una ubicación estratégica, práctica y con auténtica proyección de futuro.
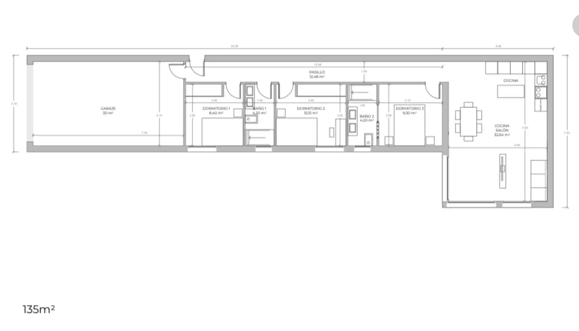
Se trata de un proyecto de autopromoción situado en Calle Cal Estapé 16, Lliçà de Vall (Barcelona): una parcela de 600 m² con 90m² Y 135 m² de vivienda a tu gusto (POSIBILIDAD DE REDUCIR O AMPLIAR METROS), sin límites, con idea abierta y lista para que tú elijas distribución, diseño, estilos y acabados… justo como siempre lo imaginaste.
📍 Por qué esta ubicación marca la diferencia:
✔ Situada en una de las zonas con mejor demanda residencial de Lliçà de Vall, con servicios al alcance de la mano: supermercados, bancos, farmacia, centro de salud y colegios a menos de 500 m.
✔ Conectada mediante transporte público cercano (paradas de autobús a pocos minutos y estación de tren cerca de la localidad).
✔ Excelente acceso por carretera: fácil conexión con Barcelona (aproximadamente 28 km, ~35-40 min) tanto en transporte público como en coche.
✔ Muy bien comunicada con servicios, comercios, ocio y puntos clave del área metropolitana de Barcelona.
🏖️ Y sí… la playa está a menos de 20 min en coche desde Lliçà de Vall, perfecta para escapadas dentro del día.
¿Qué te ofrece este proyecto?
✨ Obra nueva a tu medida: Casa individual de 90 m² Y 135 m² construibles con jardín privado, luz, espacio para piscina opcional… tu visión, tu proyecto.
✨ Terreno de 600 m²: Ideal para familia, teletrabajo, jardín, lifestyle exterior…
✨ Diseño libre y personalizable: Tú decides cómo se construye: 1 planta O 2, terrazas, orientación, acabados premium…
✨ Versátil para todos los perfiles:
👨👩👧👦 Familias que quieren espacio y calidad de vida.
🏠 Autopromotores con visión y estilo propio.
💼 Inversores que buscan rentabilidad y valorización en zona en crecimiento.
Construcción de obra tradicional o hormigón prefabricado al mismo precio.
En un mercado donde lo construido ya casi no se toca… aquí tú eres quien decide cómo vivir o invertir. No es una casa más: es tu casa, pensada desde cero para adaptarse a tu estilo de vida o a tu estrategia de inversión.
📐 Terreno: 600 m² • Construcción proyectada: 90 m² Y 135 m²
📞 Elysiam Real Estate – Te acompañamos desde la idea hasta la llave.
ACEPTAMOS SU VIVIENDA A CAMBIO!
Características de la vivienda
Características básicas
Interior
Certificado energético
Documentación disponible
Pertenece a la promoción
LLIÇA DE VALL
Promoción Desde 359.000 €
Avinguda de Ca L'estapé, 16, Lliçà de Vall
- Habitaciones:3
- Baños:2
- Superficie:90
Tipo de interés
Cuota mensual estimada
1.285 €
Servicio ofrecido por
Fotocasa no actúa como intermediario financiero. La información proporcionada tiene carácter orientativo, basándose en información pública en el mercado. Será la entidad de crédito quién contacte con el potencial prestatario para negociar, facilitar y pactar las condiciones financieras aplicables.
Desglose de la hipoteca
Tu cuota mensual
1.285 € *
Durante 30 años (360 cuotas)
Precio del inmueble:
359.000 €
Impuestos y gastos de la compra:
38.099 €
Coste total del inmueble:
397.099 €
Ahorro aportado:
71.800 €
Importe de la hipoteca:
325.299 €
Intereses totales:
137.418 €
Coste total con hipoteca
534.517 €
Capital + intereses + impuestos y gastos
Fotocasa no actúa como intermediario financiero. La información proporcionada tiene carácter orientativo, basándose en información pública en el mercado. Será la entidad de crédito quién contacte con el potencial prestatario para negociar, facilitar y pactar las condiciones financieras aplicables.
Elige la Fibra que mejor se adapte a ti.