Contrata luz y gas online, sin permanencia
- 2 habs.
- 2 baños
- 120 m²
- Bajos
Piso en venta en Carrer D'antoni Gaudí, Santa Maria de Palautordera
Santa Maria de Palautordera
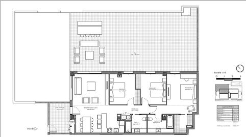
Piso "OBRA NUEVA" en planta baja de superficie de 120 m2 y 103 m2 útils, con una gran “TERRAZA PRIVADA DE 197 m2”, perfecta para disfrutar del aire libre y organizar reuniones con amigos y familiares. El salón-comedor y la cocina abierta, con una superficie de 36 m2, ofrecen un espacio amplio y luminoso para compartir momentos especiales. El piso cuenta con 3 habitaciones, 2 de ellas dobles y 1 suite con dormitorio, espacio para ubicar el vestidor y baño. Además, dispone de 2 baños, uno en la suite y otro general, con la opción de elegir entre bañera o ducha. La cocina está equipada con muebles altos y bajos, perfectos para almacenar todo lo necesario. La puerta de acceso es blindada, garantizando la máxima seguridad. La carpintería exterior de aluminio lacado blanco oscilobatiente con doble acristalamiento y rotura de puente térmico asegura un buen aislamiento térmico y acústico. El pavimento interior es de gres porcelánico imitación madera y los baños cuentan con revestimientos de porcelánico y plato de ducha de gran formato. Los grifos son monomando y el radiador toallero brinda confort en los baños. Los falsos techos interiores de yeso laminado e hidrófugo en zonas húmedas añaden un toque de elegancia. El agua caliente se realiza mediante sistema de aerotermia, climatizacióin por conductos garantizando un ambiente cálido y confortable en cualquier época del año. El piso también cuenta con portero automático, instalación de antena de TV analógica y digital, radio y telefonía, y una toma de agua en la terraza. No pierdas la oportunidad de adquirir este piso en una ubicación privilegiada. ¡Llámanos ahora!
Características
Tipo de inmueble
PisoDisponibilidad
Sin restriccionesOrientación
NoresteAgua caliente
ElectricidadCalefacción
ElectricidadEstado
Casi nuevoAntigüedad
Menos de 1 añoPlanta
Bajos / Planta bajaAscensor
SíAmueblado
NoEnergía
Etiqueta de calificación energética:GEmisiones:999 kg CO₂ m² / añoEmisiones
Etiqueta de calificación energética:GEmisiones:999 kg CO₂ m² / año
- Aire acondicionado
- Gres Cerámica
- Jardín Privado
- Terraza
- Horno
- Cocina Equipada
Tipo de interés
Cuota mensual estimada
1.638 €
Servicio ofrecido por
Fotocasa no actúa como intermediario financiero. La información proporcionada tiene carácter orientativo, basándose en información pública en el mercado. Será la entidad de crédito quién contacte con el potencial prestatario para negociar, facilitar y pactar las condiciones financieras aplicables.
Desglose de la hipoteca
Tu cuota mensual
1.638 € *
Durante 30 años (360 cuotas)
Precio del inmueble:
458.000 €
Impuestos y gastos de la compra:
48.147 €
Coste total del inmueble:
506.147 €
Ahorro aportado:
91.600 €
Importe de la hipoteca:
414.547 €
Intereses totales:
175.119 €
Coste total con hipoteca
681.266 €
Capital + intereses + impuestos y gastos
Fotocasa no actúa como intermediario financiero. La información proporcionada tiene carácter orientativo, basándose en información pública en el mercado. Será la entidad de crédito quién contacte con el potencial prestatario para negociar, facilitar y pactar las condiciones financieras aplicables.
Elige la Fibra que mejor se adapte a ti.