Contrata luz y gas online, sin permanencia
- 1 baño
- 32 m²
- Bajos
Estudio en venta en Pico Veleta, Teso de la Feria - Arrabal
Salamanca Capital
VENTA DE 6 ESTUDIOS DESDE 99.900€
Avanti tiene para ti 6 inmuebles con cédula de habitabilidad, 6 estudios a estrenar (REFORMA INTEGRAL) ubicados junto a la zona del Parador, una zona tranquila y a 3 minutos en coche del centro de Salamanca, a 15 minutos andando y con las líneas de autobús urbano para que te lleven a todas las zonas de la ciudad.
Cuentan con dormitorio-salón con cocina americana sin amueblar, armario empotrado y baño completo con grifería monomando en negro mate y ducha con doble rociador, mueble en color blanco/roble de 80cm con lavabo sobre encimera y espejo iluminación led, sanitarios en blanco modelo Teka Formentera, platos de ducha cuadrados o rectangulares antideslizantes de resina en color blanco.
Ventanas PVC blanco oscilobatiente, doble acristalamiento con cámara cristal CLIMALIT 4/20/6 con PLANITHERM XN, puerta de seguridad blindada en color antracita, con mirilla y cerraduras digitales.....
Contamos con la memoria de calidades donde se aporta la tabiquería, instalaciones de electricidad, telecomunicaciones, fontanería y climatización, revestimientos y solados, carpinterías y baños.
Unas viviendas de calidad, ideales para alquilar como inversión a profesionales, estudiantes o para uso residencial donde comenzar a vivir de manera independiente.
PRÓXIMA entregar a finales de este año, desde 99.900€. Los estudios laterales en 109.900€.
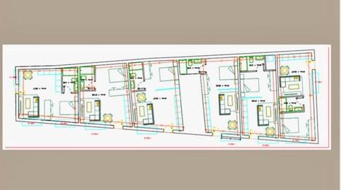
En el plano verás mejor la distribución de cada uno. No pierdas está OPORTUNIDAD.
Llama o visítanos en paseo de Carmelitas 11, bajo y te informaremos de las características, calidades y precios, además de gestionar una visita sin compromiso.
El precio indicado no incluye los gastos derivados de la compraventa, tales como impuestos, notaría o registro.
ESTE ANUNCIO NO ES VINCULANTE Y PUEDE COMETER ERRORES; SE MUESTRA A TÍTULO INFORMATIVO Y NO CONTRACTUAL
Visita nuestra página web para ver mas inmuebles: www.avantiinmobiliaria.com
Características
Tipo de inmueble
EstudioDisponibilidad
Sin restriccionesAgua caliente
ElectricidadAntigüedad
Menos de 1 añoPlanta
Bajos / Planta bajaAscensor
NoAmueblado
NoEnergía
Etiqueta de calificación energética:ExentoEmisiones
Etiqueta de calificación energética:Exento
- Aire acondicionado
- Armarios
- Calefacción
Tipo de interés
Cuota mensual estimada
354 €
Servicio ofrecido por
Fotocasa no actúa como intermediario financiero. La información proporcionada tiene carácter orientativo, basándose en información pública en el mercado. Será la entidad de crédito quién contacte con el potencial prestatario para negociar, facilitar y pactar las condiciones financieras aplicables.
Desglose de la hipoteca
Tu cuota mensual
354 € *
Durante 30 años (360 cuotas)
Precio del inmueble:
99.900 €
Impuestos y gastos de la compra:
9.733 €
Coste total del inmueble:
109.633 €
Ahorro aportado:
19.980 €
Importe de la hipoteca:
89.653 €
Intereses totales:
37.873 €
Coste total con hipoteca
147.506 €
Capital + intereses + impuestos y gastos
Fotocasa no actúa como intermediario financiero. La información proporcionada tiene carácter orientativo, basándose en información pública en el mercado. Será la entidad de crédito quién contacte con el potencial prestatario para negociar, facilitar y pactar las condiciones financieras aplicables.
Elige la Fibra que mejor se adapte a ti.