Contrata luz y gas online, sin permanencia

Abrera
Proyecto exclusivo de vivienda unifamiliar de obra nueva en Abrera, que combina diseño contemporáneo, eficiencia y rapidez de ejecución.
Se trata de un proyecto sobre plano, con un plazo de entrega de llaves en mano de 6 meses, desde el inicio de obra.
Las imágenes publicadas corresponden a renders digitales orientativos, no a una vivienda ya construida.
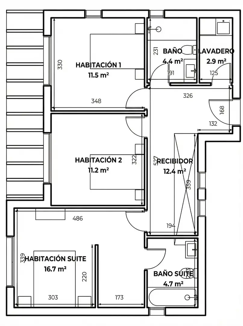
La vivienda contará con 120 m² construidos, distribuidos en dos plantas claramente diferenciadas entre zona de día y zona de noche, aportando funcionalidad y privacidad.
- Planta de acceso (zona de noche)
Acceso directo desde la calle a la planta superior mediante un recibidor.
1 Suite principal con baño privado completo.
2 dormitorios dobles
1 Baño completo
1 Lavadero
- Planta inferior (zona de día)
Amplio salón-comedor con cocina abierta al estilo americano, moderno y diáfano.
Acceso directo a porche exterior cubierto, ideal para disfrutar del exterior durante todo el año.
1 Aseo y 1 despensa
- Zona exterior
Piscina privada (incluida)
Jardín
Las condiciones económicas estimativas son las siguientes:
Precio proyecto técnico + construcción + licencia + piscina: 274.000€
Precio terreno: 75.000 €
Precio total inversión: 349.000€
Impuestos (ITP del terreno e IVA de la construcción) no incluidos en el precio.
Una excelente oportunidad para adquirir una vivienda de obra nueva en una zona residencial tranquila de Abrera, con sistema constructivo eficiente y plazo de ejecución reducido.
Para más información sobre memoria de calidades, opciones de personalización o proceso de construcción, contacte con nosotros sin compromiso.
Pertenece a la promoción
Carrer País Valencià, 25, Abrera
Tipo de interés
Cuota mensual estimada
1.250 €
Servicio ofrecido por
Fotocasa no actúa como intermediario financiero. La información proporcionada tiene carácter orientativo, basándose en información pública en el mercado. Será la entidad de crédito quién contacte con el potencial prestatario para negociar, facilitar y pactar las condiciones financieras aplicables.
Desglose de la hipoteca
Tu cuota mensual
1.250 € *
Durante 30 años (360 cuotas)
Precio del inmueble:
349.000 €
Impuestos y gastos de la compra:
37.099 €
Coste total del inmueble:
386.099 €
Ahorro aportado:
69.800 €
Importe de la hipoteca:
316.299 €
Intereses totales:
133.616 €
Coste total con hipoteca
519.715 €
Capital + intereses + impuestos y gastos
Fotocasa no actúa como intermediario financiero. La información proporcionada tiene carácter orientativo, basándose en información pública en el mercado. Será la entidad de crédito quién contacte con el potencial prestatario para negociar, facilitar y pactar las condiciones financieras aplicables.
Contrata luz y gas online, sin permanencia

Elige la Fibra que mejor se adapte a ti.

Cuéntanos qué has visto para poder corregirlo.