Contrata luz y gas online, sin permanencia
- 1 hab.
- 1 baño
- 53 m²
- Bajos
Planta baja en venta en Barrio de Ciudad Jardín
Málaga Capital
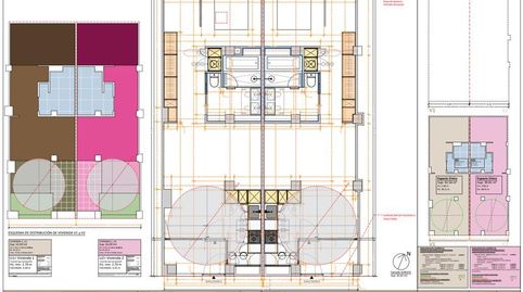
🏡 LOCAL EN VENTA CON PROYECTO DE CAMBIO A VIVIENDA EN PARQUE SUR - CIUDAD JARDÍN
Gran oportunidad tanto para vivir como para invertir.
Se vende amplio local situado en una de las zonas más demandadas de Parque Sur - Ciudad Jardín, con excelente conexión a la autovía y rodeado de todos los servicios: supermercados, transporte, colegios y zonas comerciales.
El inmueble se vende como local, siendo necesario realizar la reforma para su adaptación a vivienda. Dispone de:
✔️ Planos elaborados
✔️ Proyecto de cambio de uso presentado en el ayuntamiento
Esto permite visualizar y facilitar el desarrollo de una vivienda cómoda, moderna y adaptada a tus necesidades.
📍 Ubicado en una zona muy poblada, con alta demanda de vivienda, lo que lo convierte también en una excelente opción para inversores que buscan rentabilidad.
⚠️ Importante: Las imágenes mostradas son renders orientativos de cómo podría quedar la vivienda tras la reforma.
✨ Ideal para:
Crear una vivienda tipo loft o piso amplio
Inversión para alquiler o reventa
Proyecto personalizado desde cero
🔑 Puntos fuertes:
Ubicación estratégica
Fácil acceso a autovía
Todos los servicios a pie de calle
Alta demanda en la zona
Proyecto ya iniciado
💬 Una oportunidad única para transformar un espacio con gran potencial en una vivienda a medida o una inversión rentable.
Si quieres, te puedo hacer una versión aún más “vende rápido” (más directa para inversores) o añadirle título tipo gancho para destacar en Idealista 👍
Luxua Homes
Soluciones inmobiliarias
1.000 razones para vivir en Málaga
Encuentra más en: luxuahomes.com
Características
Tipo de inmueble
Planta bajaDisponibilidad
Sin restriccionesEstado
A reformarAntigüedad
Menos de 1 añoPlanta
Bajos / Planta bajaAscensor
NoAmueblado
NoEnergía
Etiqueta de calificación energética:GEmisiones:999 kg CO₂ m² / añoEmisiones
Etiqueta de calificación energética:GEmisiones:999 kg CO₂ m² / año
Tipo de interés
Cuota mensual estimada
446 €
Servicio ofrecido por
Fotocasa no actúa como intermediario financiero. La información proporcionada tiene carácter orientativo, basándose en información pública en el mercado. Será la entidad de crédito quién contacte con el potencial prestatario para negociar, facilitar y pactar las condiciones financieras aplicables.
Desglose de la hipoteca
Tu cuota mensual
446 € *
Durante 30 años (360 cuotas)
Precio del inmueble:
129.000 €
Impuestos y gastos de la compra:
9.643 €
Coste total del inmueble:
138.643 €
Ahorro aportado:
25.800 €
Importe de la hipoteca:
112.843 €
Intereses totales:
47.669 €
Coste total con hipoteca
186.312 €
Capital + intereses + impuestos y gastos
Fotocasa no actúa como intermediario financiero. La información proporcionada tiene carácter orientativo, basándose en información pública en el mercado. Será la entidad de crédito quién contacte con el potencial prestatario para negociar, facilitar y pactar las condiciones financieras aplicables.
Elige la Fibra que mejor se adapte a ti.