Contrata luz y gas online, sin permanencia

Alcobendas
No se indica la dirección exacta ni se aportan fotografías para preservar el anonimato de los inquilinos.
¡¡ OPORTUNIDAD ÚNICA PARA INVERSORES, RENTABILIDAD 7% !!
Tenemos diferentes precios según el espacio.Desde 235.700 € (plaza de garaje y trastero opcional)
Presentamos este exclusivo conjunto de espacios profesionales en Alcobendas, ideal para inversores que buscan rentabilidad inmediata y estabilidad.
- 100% alquilado
- Rentabilidad garantizada del 7% desde el primer día
- Posibilidad de empadronamiento
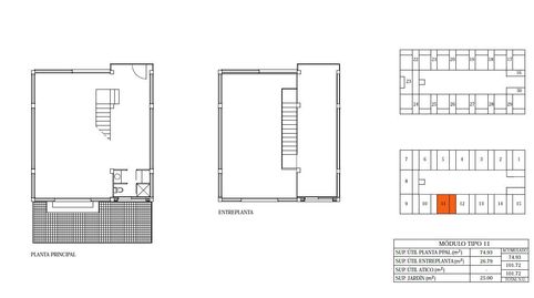
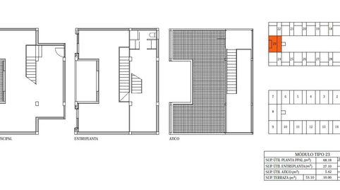
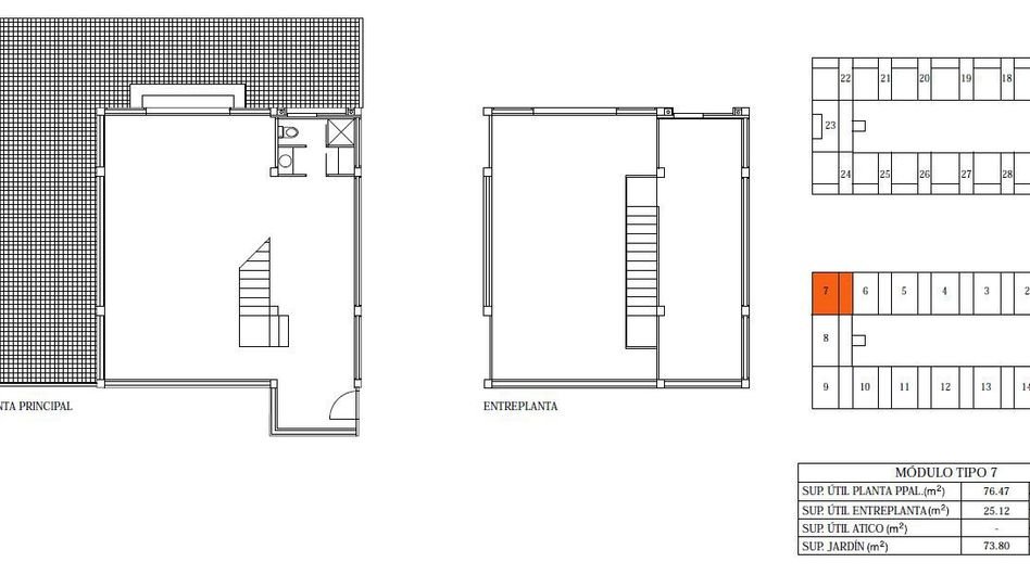
Ubicados en una de las zonas más tranquilas y consolidadas del municipio, los inmuebles se distribuyen en planta calle y áticos, ofreciendo versatilidad y alta demanda.
Cada unidad incluye:
- 1 dormitorio independiente
- Salón-comedor luminoso
- Cocina americana funcional
- Baño completo
- Puerta blindada
- Preinstalación de bomba de calor
Excelente aislamiento térmico y acústico gracias a vidrios aislantes con carpintería de aluminio.
- Edificio eficiente y con servicios:
- Placas solares con acumuladores
- Ascensor
- Caseta de vigilancia
- Zonas comunes
Posibilidad de adquirir de forma independiente una plaza de garaje y trastero
Una inversión sólida, en una ubicación estratégica, con ingresos desde el primer momento y sin necesidad de reforma.
Contáctanos para más información o visita.
Tipo de inmueble
Disponibilidad
Calefacción
Estado
Ascensor
Amueblado
Energía
Emisiones
Tipo de interés
Cuota mensual estimada
809 €
Servicio ofrecido por
Fotocasa no actúa como intermediario financiero. La información proporcionada tiene carácter orientativo, basándose en información pública en el mercado. Será la entidad de crédito quién contacte con el potencial prestatario para negociar, facilitar y pactar las condiciones financieras aplicables.
Desglose de la hipoteca
Tu cuota mensual
809 € *
Durante 30 años (360 cuotas)
Precio del inmueble:
235.700 €
Impuestos y gastos de la compra:
16.138 €
Coste total del inmueble:
251.838 €
Ahorro aportado:
47.140 €
Importe de la hipoteca:
204.698 €
Intereses totales:
86.472 €
Coste total con hipoteca
338.310 €
Capital + intereses + impuestos y gastos
Fotocasa no actúa como intermediario financiero. La información proporcionada tiene carácter orientativo, basándose en información pública en el mercado. Será la entidad de crédito quién contacte con el potencial prestatario para negociar, facilitar y pactar las condiciones financieras aplicables.
Contrata luz y gas online, sin permanencia

Elige la Fibra que mejor se adapte a ti.

Cuéntanos qué has visto para poder corregirlo.