Contrata luz y gas online, sin permanencia
- 85 m²
- 85 m² terreno
Residencial en venta en Carrer de Quevedo, La Salut
Badalona
Solar en venta en Badalona en la calle Quevedo, al lado de la parada de metro de la Salut (L10N) y justo en frente del Mercado Municipal de Badalona.
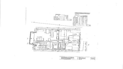
Se trata de un solar, en el que se podrían edificar 4 viviendas más un local (planta baja más cuatro). Las viviendas contarían con alrededor de unos 70 metros cuadrados y 3 habitaciones según la posible distribución.
Se adjunta proyecto orientativo con el posible edificio a construir.
*Los precios expuestos no incluyen los impuestos a los que pueden estar sujetos a la compraventa del inmueble (ITP). Ni tampoco los honorarios del notario, registro o gestoría.
Características
Tipo de inmueble
Residencial
Tipo de interés
Cuota mensual estimada
787 €
Servicio ofrecido por
Fotocasa no actúa como intermediario financiero. La información proporcionada tiene carácter orientativo, basándose en información pública en el mercado. Será la entidad de crédito quién contacte con el potencial prestatario para negociar, facilitar y pactar las condiciones financieras aplicables.
Desglose de la hipoteca
Tu cuota mensual
787 € *
Durante 30 años (360 cuotas)
Precio del inmueble:
219.000 €
Impuestos y gastos de la compra:
23.896 €
Coste total del inmueble:
242.896 €
Ahorro aportado:
43.800 €
Importe de la hipoteca:
199.096 €
Intereses totales:
84.105 €
Coste total con hipoteca
327.001 €
Capital + intereses + impuestos y gastos
Fotocasa no actúa como intermediario financiero. La información proporcionada tiene carácter orientativo, basándose en información pública en el mercado. Será la entidad de crédito quién contacte con el potencial prestatario para negociar, facilitar y pactar las condiciones financieras aplicables.
Elige la Fibra que mejor se adapte a ti.