Edificio en Barri Gòtic
Barri Gòtic, Barcelona Capital
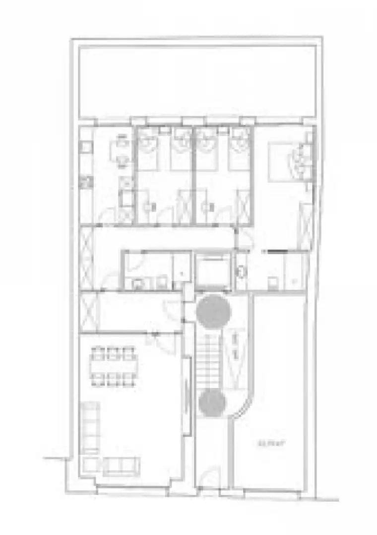
Oportunidad única de inversión patrimonial en el centro de Barcelona, con derecho a vuelo y proyecto de rehabilitación con licencia de ascensor concedida. Situado en pleno triángulo de oro del centro histórico, entre Plaza Catalunya, Calle Fontanella y Vía Layetana. Zona de altísima demanda para alquiler de media y larga estancia, así como uso profesional. Edificio señorial del año 1900, con una superficie total construida de 933,68 m2 (según proyecto). Composición del edificio: Planta Baja + Altillo: Gran potencial para uso comercial, oficina o dotacional. Planta Principal + 3 Plantas Piso: Distribución clásica, techos altos y elementos originales. Ascensor: Proyecto y licencia incluidos para instalación inmediata, incrementando el valor de todas las unidades. ACTIVOS INCLUIDOS EN EL PRECIO 3 Viviendas (una con régimen indefinido y otra recientemente reformada) 1 Oficina. Planta Baja / Almacén. Derecho a vuelo para construir 2 nuevas viviendas (remonta). Estado jurídico: División horizontal realizada. 2 viviendas ya vendidas a terceros. PROYECTO Y PRESUPUESTO Presupuesto de reforma: 240.000 € + IVA (Incluye 4 unidades, ascensor, fachada y zonas comunes). Ideal para inversores patrimoniales, family office o promotores que busquen rentabilidad y revalorización en una de las zonas más demandadas de la ciudad. Contacta para ampliar información, planos y proyecto.
- 958 m²
