- Hace 533 días
Casa o chalet en Gijón - Rioja, Tremañes
- 3 habs ·
- 2 baños ·
- 82 m² ·
- Terraza ·
- Calefacción ·
- Hace 533 días
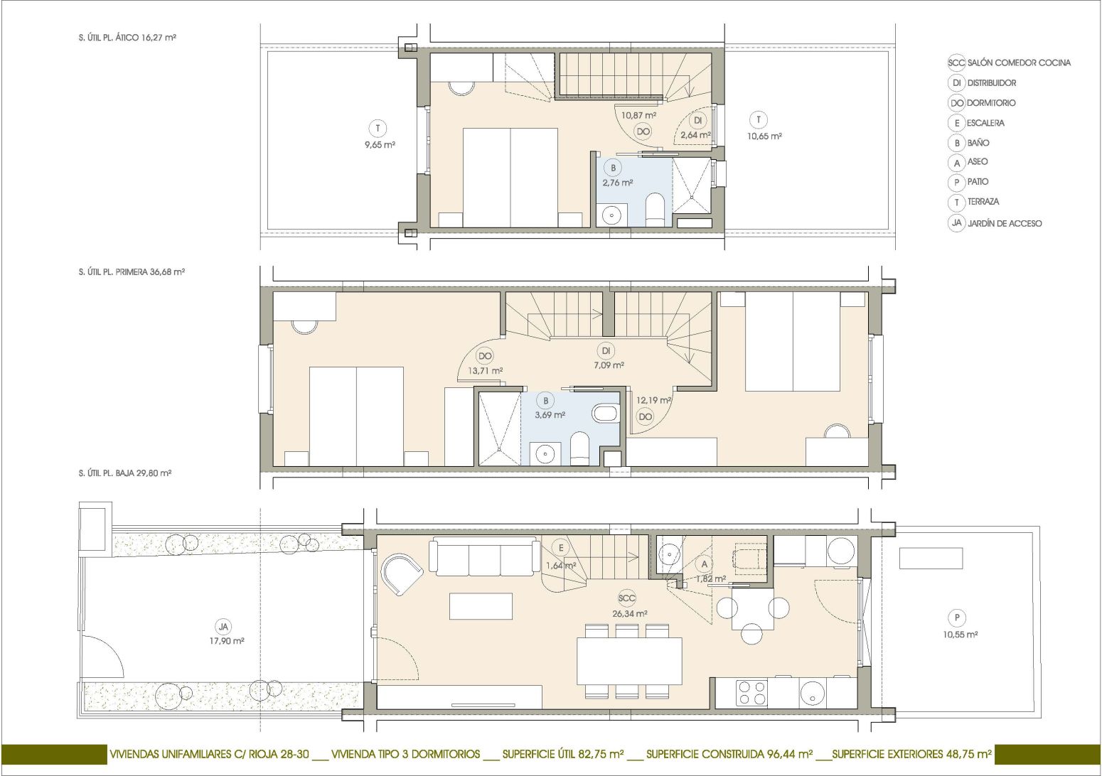
Ponemos a la venta una nueva promoción de viviendas adosadas en la C/ Rioja de Gijón. La vivienda se va a distribuir en 3 plantas: Planta baja: salón, cocina y un aseo. Esta planta se conectará con un jardín delantero y un patio trasero, ambas con una superficie total de 28.45 m2.Planta primera: 2 dormitorios y un baño.Planta segunda: dormitorio con baño en suite. Esta planta tiene acceso a dos terrazas, delantera y trasera de 9.65 y 10.65 m2 respectivamente.El total de superficie construida de la vivienda es de 96.05 m2 + 48.75 m2 exteriores. El comprador podrá elegir el estilo de escalera, recta o bien helicoidal. La vivienda que se entrega con la cocina totalmente equipada con horno, microondas, vitrocerámica. El sistema de calefacción contará con Aerotermia, mediante bomba de calor y radiadores. Igualmente dispone de sistema de recuperación de calor, sistema mecánico que extrae el aire viciado de cocinas y baños y lo introduce en habitaciones y salón reduciendo mínimamente la temperatura de este, lo que evita el funcionamiento de la bomba de calor y por tanto el consumo. La fachada cuenta con el sistema de aislamiento térmico de edificios (SATE) en tota la envolvente del edificio. La vivienda contará con la calificación energética A en demanda, consumos y emisiones. En cuanto al cierre de la parcela, el comprador podrá optar entre dos alternativas: Cierre de parcela mediante fábrica de ladrillo y reja, para estancia con pavimento bien, ajardinado o bien con pavimento porcelánico.Cierre de parcela mediante portón enrollable para estacionamiento mediante pavimento de hormigón pulido. En esta opción el portón tiene un precio equivalente al coste de 3.000 EUR. Existe la posibilidad de la adquisición de una plaza de garaje y/o un trastero, en el semisótano de la promoción en construcción de la C/ Bazán nº 37, con entrada de garaje por el número 8 de la misma calle Rioja. El precio de venta de la vivienda es de 285.000 EUR. (En este precio no incluye IVA, gastos de notaría y registro).