2.000 € /mes
- 4 habs.
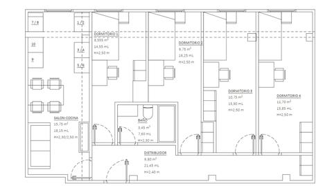
- 83 m²
Piso de alquiler en N/a, Ventas
Madrid Capital
Esta apartmento en Madrid, ofrece un espacio habitable no amueblado de ??m² perfecto para profesionales / estudiantes. Esta apartmento está disponible para que la puedas alquilar a través de HousingAnywhere.
Características
Tipo de inmueble
PisoDisponibilidad
Sin restriccionesTipo de alquiler
Larga duraciónCalefacción
Gas naturalAscensor
NoAmueblado
SíEnergía
Etiqueta de calificación energética:GEmisiones:999 kg CO₂ m² / añoEmisiones
Etiqueta de calificación energética:GEmisiones:999 kg CO₂ m² / año
- Lavadora
- TV
Servicios adicionales de Fotocasa