Energía para tu hogar
Contrata luz y gas online, sin permanencia
Ofrecido por
Motril
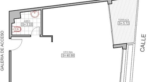
La oficina se encuentra en la Avda. de Salobreña, en el edificio de la Notaría.
Dispone de aseo y aire acondicionado.
Cuenta con fácil acceso y se encuentra en un edificio emblemático.
Cuenta con doble acristalamiento. Además de los amplios ventanales tiene una terraza de 6 m2 con vistas a las Explanadas.
La comunidad está incluida en el precio. [IW]
Tipo de inmueble
Orientación
Antigüedad
Planta
Ascensor
Amueblado
Energía
Emisiones
Contrata luz y gas online, sin permanencia
Elige la Fibra que mejor se adapte a ti.
Cuéntanos qué has visto para poder corregirlo.