- 142 m²
- Bajos
Oficina de alquiler en Rafalafena
Castellón de la Plana / Castelló de la Plana
Entresuelo en alquiler en Avenida Lidón, ideal para oficinas, clínica o despacho profesional
Se alquila magnífico entresuelo con entrada independiente en Avenida Lidón, una ubicación excelente para desarrollar tu actividad profesional en un espacio con visibilidad, comodidad y buena imagen.
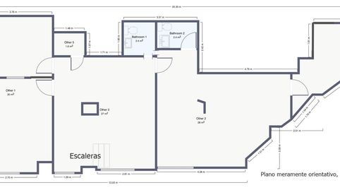
La propiedad cuenta con 142 m2 y se distribuye de forma muy funcional en:
Hall principal
4 despachos
2 aseos
Grandes ventanales a la calle
Se trata de un inmueble con poca antigüedad, lo que aporta una imagen más actual y mejores prestaciones para cualquier negocio que necesite un espacio representativo y bien distribuido.
✅ Ideal para:
oficinas, clínica, consulta médica, centro de estética, academia, despacho profesional o actividades similares.
📍 Ubicación estratégica en Av. Lidón
👀 Entrada independiente
🚪 Visita en menos de 24 horas
Características
Tipo de inmueble
OficinaOrientación
NoresteEstado
Casi nuevoAntigüedad
10 a 20 añosPlanta
Bajos / Planta bajaAscensor
NoAmueblado
NoEnergía
Etiqueta de calificación energética:GEmisiones:999 kg CO₂ m² / añoEmisiones
Etiqueta de calificación energética:GEmisiones:999 kg CO₂ m² / año