Contrata luz y gas online, sin permanencia
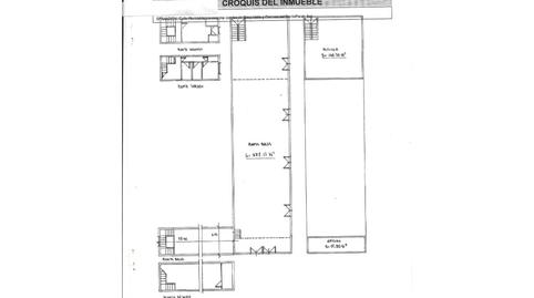
- 517 sqm
Premises for rent in Barrio de Peral - San Félix
Cartagena
EN VENTA y ALQUILER LOCAL-NAVE COMERCIAL
Local - nave de 517 metros cuadrados. El inmueble se puede utilizar para instalar almacen o supermercado por su ubicación en el Barrio de Peral.
Para constructor o inversor ya que es suelo urbano y se pueden construir aproximadamente 6 o 7 dúplex según pueda hacer el encaje un arquitecto.
EN VENTA EL PRECIO ES DE 373.000 EUROS
EN ALQUILER EL PRECIO ES DE 1.000 EUROS AL MES.
Llámanos y organizamos una visita .
LOS PRECIOS Y OFERTAS PRESENTADOS EN NUESTRA WEB NO SON VINCULANTES Y ESTÁN SUJETOS A CAMBIOS. GASTOS DE COMPRA-VENTA Y HONORARIOS DE LA AGENCIA NO VAN INCLUIDOS EN EL PRECIO DE VENTA.
Por mandato expreso del propietario, comercializamos este inmueble en exclusiva, lo que le garantiza el acceso a toda la información, a un servicio de calidad, un trato fácil, sencillo y sin interferencias de terceros. Por este motivo, se ruega no molestar al propietario, a los ocupantes de la propiedad o a los vecinos. Toda la información que deseen se la vamos a proporcionar sin compromiso alguno y estaremos encantados de asesorarles de todo .
Muchas gracias por su comprensión.
Tanto la descripción del inmueble como las imágenes tienen mero carácter informativo, en ningún caso contractual. Asimismo, el precio ha sido designado por la propiedad por lo que podría sufrir variaciones y no sería vinculante hasta que se formalice en contrato de compraventa.
#ref:ege-0535
More filters
Property type
Commercial premisesCondition
Very goodFurnished
NoEnergy
Energy rating label:GEmissions:999 kg CO₂ m² / yearEmissions
Energy rating label:GEmissions:999 kg CO₂ m² / year
Elige la Fibra que mejor se adapte a ti.