Contrata luz y gas online, sin permanencia
- 230 m²
- Basement
Büro zur Miete in Sant Llorenç - Zona Alfahuir
Valencia Capital
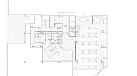
En edificio exclusivo de oficinas. Oficina en semisótano de nueva construcción ubicada dentro de un espacio del edificio antes destinado a auditorio. La oficina se distribuye en un hall de entrada distribuidor, varios despachos y una amplia sala de reuniones.
Las fotos corresponden a zonas comunes del edificio y render del proyecto en desarrollo, ya que las oficinas están en proceso de reforma. El plano corresponde al proyecto de esta oficina.
El edificio cuenta con conserje, videovigilancia 24 horas, y dos ascensores. Además existen plazas de garaje y trasteros opcionales en el alquiler, precio a consultar y según disponibilidad.
-Falso techo tipo Armstrong
-Suelo técnico
-Sistema frío/calor mediante equipos autónomos
-Instalación detección y contraincendios
-Aseos comunes en cada planta
Disponibilidad a coordinar
En el precio de renta no se incluyen los gastos de comunidad, que son por cuenta del inquilino (3,50 €/m²).
Eigenschaften
Immobilientyp
BüroAusrichtung
OstenZustand
NeuwertigEtage
KellerAufzug
JaMöbliert
NeinEnergie
Energielabel:GEmissionen:999 kg CO₂ m² / JahrEmissionen
Energielabel:GEmissionen:999 kg CO₂ m² / Jahr
- Klimaanlage
- Heizung
Elige la Fibra que mejor se adapte a ti.