Contrata luz y gas online, sin permanencia
- 177 m²
- 177 m² Gelände
Residential zum Verkauf in Carrer del Músic Arrieta, Es Vivero
Palma de Mallorca
COCO INMOBILIARIA OFRECE.
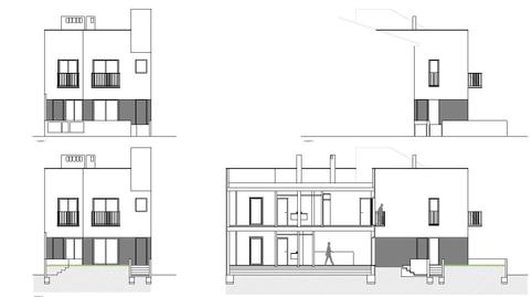
Se ofrece solar urbano edificable de planta rectangular, con fachada en uno de sus lados cortos y parte del lado largo, lo que permite un excelente aprovechamiento de la parcela para el desarrollo de un proyecto residencial.
El terreno ofrece la posibilidad de diseñar viviendas luminosas y bien ventiladas gracias a la opción de incorporar un patio posterior que garantice la entrada de luz natural y ventilación en las estancias interiores. Esta configuración permite crear espacios confortables, funcionales y muy atractivos tanto para uso residencial como para inversión en alquiler.
La versatilidad del solar permite diferentes configuraciones de edificación y se adapta a distintos proyectos y perfiles de inversor. Existe la posibilidad de desarrollar hasta cuatro apartamentos de aproximadamente 55 m2 cada uno, una opción especialmente interesante para alquiler o venta. También se puede optar por construir dos viviendas de alrededor de 110 m2 o una vivienda unifamiliar de hasta 220 m2.
Entre sus ventajas adicionales destaca la posibilidad de aprovechar el espacio de retranqueo como aparcamiento para un vehículo. Asimismo, existe la opción de demoler la edificación existente de una planta situada en la esquina de la fachada, lo que permitiría liberar completamente el espacio no edificable y optimizar el aprovechamiento del terreno.
Ubicado en una zona bien comunicada y con acceso cercano a servicios esenciales, este solar se encuentra en un entorno práctico y con potencial de revalorización, lo que lo convierte en una excelente oportunidad tanto para promotores como para inversores.
Una propiedad con gran potencial para desarrollar un proyecto rentable o para construir una vivienda a medida.
Para más información, no dudes en contactar.
Eigenschaften
Immobilientyp
Wohnimmobilie
Zinsart
Geschätzte monatliche Rate
1.079 €
Dienstleistung angeboten von
Fotocasa agiert nicht als Finanzvermittler. Die bereitgestellten Informationen dienen lediglich der Orientierung und basieren auf öffentlich zugänglichen Marktinformationen. Das Kreditinstitut wird den potenziellen Kreditnehmer kontaktieren, um die anwendbaren finanziellen Bedingungen zu verhandeln, zu erleichtern und zu vereinbaren.
Hypothekenaufschlüsselung
Ihre monatliche Rate
1.079 € *
Für 30 Jahre (360 Raten)
Immobilienpreis:
315.000 €
Steuern und Kaufnebenkosten:
21.099 €
Gesamtkosten der Immobilie:
336.099 €
Eingebrachte Ersparnisse:
63.000 €
Hypothekenbetrag:
273.099 €
Gesamtzinsen:
115.367 €
Gesamtkosten mit Hypothek
451.466 €
Kapital + Zinsen + Steuern und Kosten
Fotocasa agiert nicht als Finanzvermittler. Die bereitgestellten Informationen dienen lediglich der Orientierung und basieren auf öffentlich zugänglichen Marktinformationen. Das Kreditinstitut wird den potenziellen Kreditnehmer kontaktieren, um die anwendbaren finanziellen Bedingungen zu verhandeln, zu erleichtern und zu vereinbaren.
Elige la Fibra que mejor se adapte a ti.