- Fa 1 dia
Pis amb aire condicionat a Juan XXIII - Rochelambert
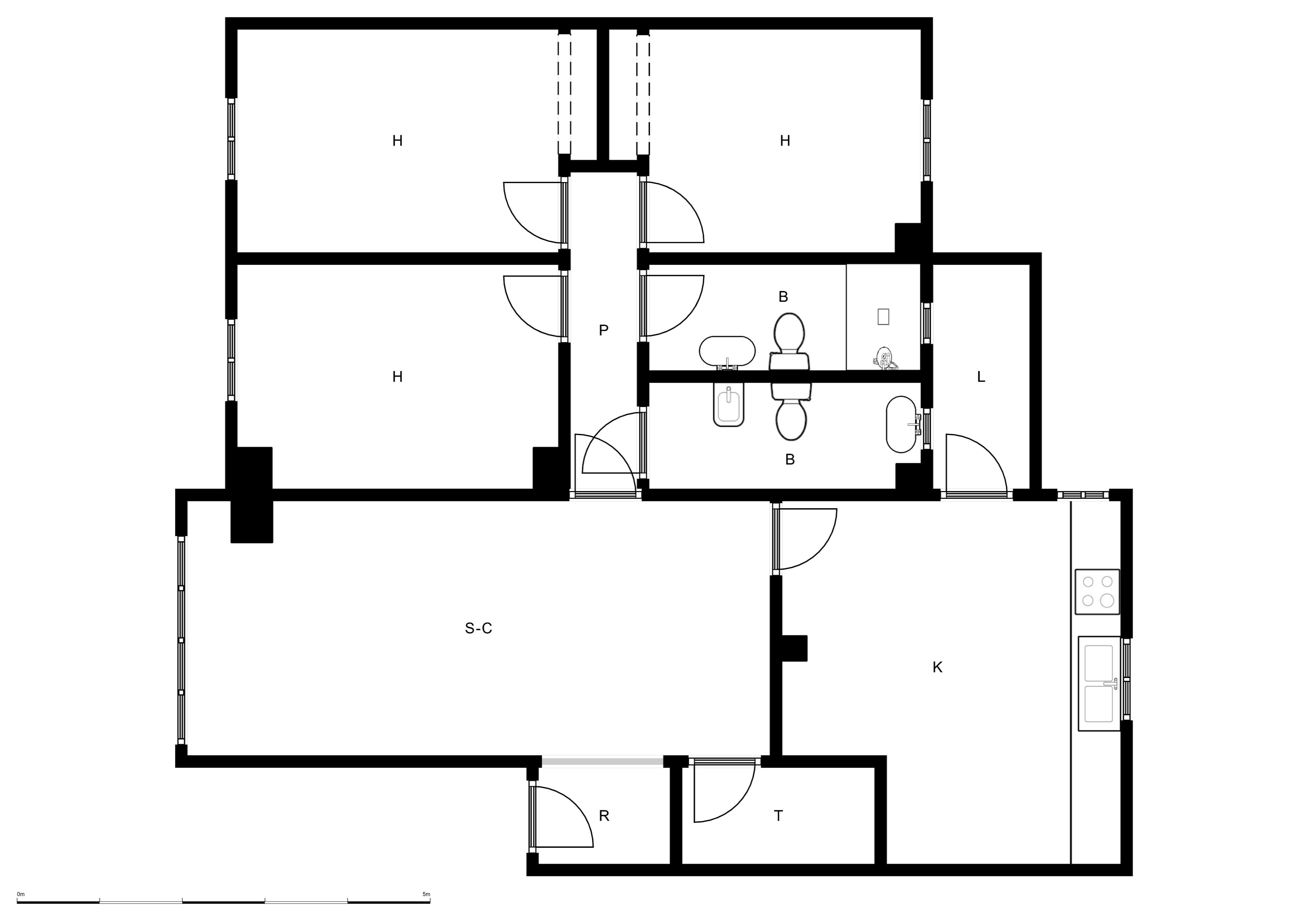
- 3 habs ·
- 2 baños ·
- 97 m² ·
- entresòl ·
- Aire condicionat ·
- Fa 1 dia
¡ALTA DE SUMINISTROS GRATIS! Excelente vivienda de tres dormitorios y dos baños. Se encuentra en la 1ª planta de un edificio residencial. No dispone de ascensor. Situado en JUAN XXIII en el distrito de Cerro Amate. La vivienda se distribuye en tres dormitorios y , armarios empotrados, salón-comedor, cocina independiente y dos baños.. Cuenta con cocina amueblada y equipada con muebles altos y bajos, vitrocerámica, horno y campana extractora. Dispone de suelos de gres en cocina, baño y en el resto de estancias. Dispone de aire acondicionado. Se encuentra ubicado en Cerro Amate, Sureste de Sevilla. Cuenta con fácil acceso a través de las principales carreteras y buenas comunicaciones por transporte público. La parada de metro más cercana es Amate y se encuentra a menos de 10 minutos andando. La parada de autobús más cercana es La Calesera (La Monteria) y se encuentra a menos de 5 minutos andando. En su entorno existen viviendas plurifamiliares de similares características. La zona cuenta con todo tipo de servicios básicos, el centro de salud más cercano se encuentra a 590 metros, existen 3 farmacias a menos de 300 metros, existen 2 colegios a menos de 300 metros. Además, a menos de 500 metros también puedes encontrar 4 supermercados, 3 bancos. La zona cuenta con una amplia oferta de entretenimiento con un parque, bares, restaurantes y comercios a pocos minutos de la vivienda. En cuanto al transporte privado, la zona dispone de parkings privados y aparcamiento en la calle. La vivienda tiene un fácil acceso por carretera y está bien comunicado a través de la SE-30; A-4, Calle Carlos Marx y la Calle Ingeniero de la Cierva. Requisitos: - 1 mes de fianza - Seguro del hogar a la firma del contrato. - Antigüedad laboral ininterrumpida superior a un año. - No aparecer en ningún fichero de morosidad. - Disponer de una ratio de solvencia* de entre un 30% y 35% dependiendo de la zona. *Solo se tendrán en cuenta ingresos demostrables para acreditar el ratio
