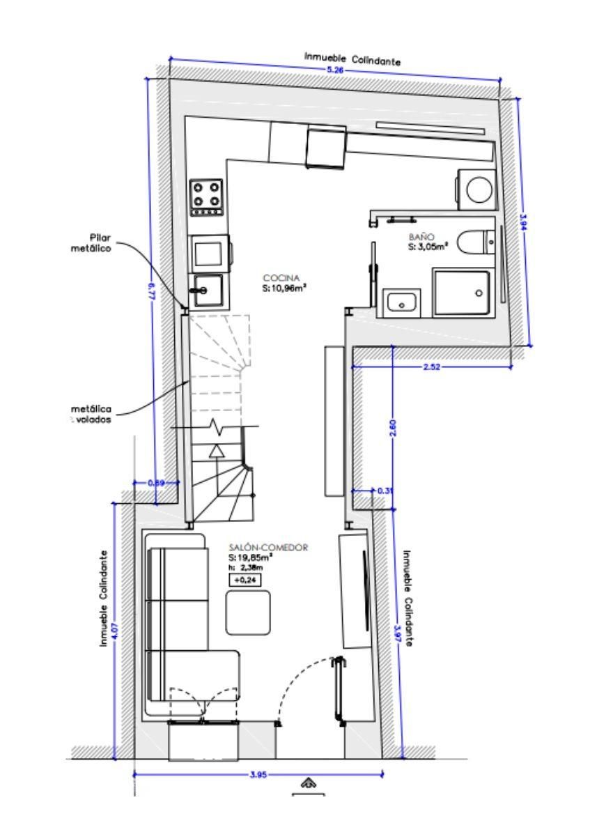
Casa en Coín con licencia de obra en vigor y proyecto incluido. Empiece a construir desde el primer día Le presentamos en exclusiva esta oportunidad en el centro de Coín: vivienda unifamiliar de 120 m2 con obra iniciada, proyecto pagado y licencia activa. Compre hoy y empiece a construir mañana, sin esperas ni burocracia. La parte más compleja ya está ejecutada: el interior ha sido completamente demolido y limpiado, el saneamiento es nuevo, la estructura ha sido revisada y las fachadas se mantienen. Solo queda la fase de distribución interior y acabados Distribución proyectada: Planta baja: salón-comedor con cocina abierta + baño Planta alta: 2 dormitorios + baño Azotea: terraza solárium privada Como empresa constructora y experta en House Flipping, Sunsol le ofrece una estimación del coste de finalización de la vivienda llave en mano, asesoramiento técnico y posibilidad de gestión integral de la obra. Contáctenos para más información o para concertar una visita. Oportunidades con licencia activa, proyecto incluido y obra iniciada como esta son muy limitadas en el mercado actual. Ahorro estimado para el comprador: 25.000 € en costes de proyecto y licencias, además del importante ahorro de tiempo.
-
-
-
-
-
-
-
-
-
-
-
-
-
-
-
-
-
-
-
-
-
-
-
-
-
-
-
-
-
-
-
-
-
-
-
-
-
-
-
-
-
-
-
-
-
-
-
-
-
-
-
-
-
-
-
-
-
-
-
-
-
-
-
-
-
-
-
-
-
-
-
-
-
-
-
-
-
-
-
-
-
-
-
-
-
-
-
-
-
-
-
-
-
-
-
-
-
-
-
-
-
-
-
-
-
-
-
-
-
-
-
-
-
-
-
-
-
-
-
-
-
-
-
-
-
-
-
-
-
-
-
-
-
-
-
-
-
-
-
-
-
-
-
-
-