Calcula la teva hipoteca
Compara ofertes dels diferents bancs.
Vitoria - Gasteiz
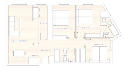
ARANBIZKARRA - Piso de 98 m2 distribuidos en 3 dormitorios, salón grande, cocina y 2 baños. Dispone de trastero. Calefacción y agua caliente individual de gas. Semiexterior con orientación Este. Ascensor cota 0.
Aranbizkarra es un encantador barrio situado al este de Vitoria, ideal para familias y personas que buscan un entorno tranquilo y bien comunicado. Este barrio cuenta con un Centro de Salud y un campo de fútbol, lo que lo convierte en un lugar perfecto para disfrutar de actividades deportivas y cuidar de la salud. Además, su excelente conexión de transporte público, incluyendo autobuses y el BEI, facilita el acceso a otras áreas de la ciudad. Los residentes pueden disfrutar de amplias zonas verdes, como el parque de Aranbizkarra, ideal para paseos y actividades al aire libre. Para las familias, el CEIP Aranbizkarra ofrece una educación de calidad, haciendo de este barrio una opción atractiva para vivir.
Tipus d'immoble
Planta
Ascensor
Consum energia
Emissions
Compara ofertes dels diferents bancs.
Tria la Fibra que millor s'adapti a tu.
Estalvia un 30% en un servei de 5 estrelles.
Explica'ns què hi has vist per poder corregir-ho.