Contrata luz y gas online, sin permanencia
- 2 habs.
- 2 banys
- 146 m²
Àtic en venda a Zona Carrefour - Urbanizaciones
Torrevieja
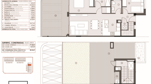
Descubra un residencial de 172 viviendas de diseño en Torrevieja, diseñado para quienes buscan confort, exclusividad y calidad de vida en la Costa Blanca. Este complejo, distribuido en 6 bloques de planta baja más tres alturas, ofrece viviendas de 2 y 3 dormitorios, todas con 2 baños completos y una magnífica orientación sur/oeste, lo que garantiza una luminosidad excepcional durante todo el día. Cada hogar ha sido concebido para disfrutar de las impresionantes vistas hacia las amplias zonas comunes, donde se encuentran un gimnasio, spa, sauna, piscinas comunitarias, pistas de pádel y extensas zonas verdes cuidadas al detalle.
Las plantas bajas cuentan con jardines privados, las viviendas intermedias destacan por sus amplias terrazas, y los áticos disfrutan de soláriums privados, ideales para relajarse bajo el sol mediterráneo. Además, todas las propiedades incluyen garaje y trastero en los dos sótanos del complejo. Situado a un paso de todos los servicios y a pocos minutos en coche de las playas de Torrevieja, este residencial representa una oportunidad única para invertir en estilo, comodidad y bienestar.
Clima:
El clima en la Costa Blanca, a menudo considerado como el mejor de Europa, hace posible un estilo de vida muy sociable y saludable, al aire libre, marcado por instalaciones deportivas y de ocio, con ciudades turísticas, excitantes y cosmopolitas, que destacan por la prestación de servicios máxima categoría, algunos de ellos exclusivos, considerados de auténtico lujo. Todos ellos destinados a un cliente exigente, que busca calidad y cercanía.
La Costa Blanca cuenta con más de 300 días de sol al año. Un paraíso con excelentes conexiones a toda Europa. El Aeropuerto de Alicante-Elche cuenta con unas modernas instalaciones y con un fácil y cómodo acceso desde cualquier punto de la provincia.
Entorno:
La Costa Blanca sigue atrayendo a gente de toda Europa y más allá, ya que ofrece una calidad de vida única en un hermoso entorno mediterráneo, rodeado de montañas y exuberante vegetación. Además de los campos de golf y puertos deportivos que puedes disfrutar a lo largo de la costa, la región también ofrece la oportunidad de esquiar en los alrededores de Sierra Nevada, Javalambre o Valdelinares, un paraíso para los amantes de los deportes de invierno con hermosos paisajes naturales. La Costa Blanca ofrece un estilo de vida especialmente rico, donde las playas y calas más hermosas del Mediterráneo se combinan con un interior lleno de montañas y pueblos que esconden una cultura y monumentos históricos únicos en el mundo.
Tenemos un regalo para ti:
Desde nuestra agencia inmobiliaria te ayudamos a transformar tu nuevo hogar en el hogar de tus sueños. Te ofrecemos un cheque regalo para muebles por valor de 1.900 € y una visita técnica a la oficina de diseño del hogar , donde nuestro equipo técnico te asesorará sobre las posibilidades de mejorar y amueblar tu hogar. Totalmente gratis!!
IMPORTANTE!!
Recuerde, nuestros servicios NUNCA incrementan el precio final de la vivienda a nuestros clientes. Nuestra experiencia en el sector nos convierte en tu aliado, un asesor de confianza que te ayudará a elegir la casa de tus sueños en la mejor zona, y te informará sobre el precio de mercado de las propiedades que te interesan, las calidades utilizadas y todo. Información imprescindible y objetiva para que tu experiencia sea completamente satisfactoria.
Six Seconds Properties (965059685) Forma parte de un grupo de empresas consolidadas y especializadas, todas ellas activas en el sector de la construcción residencial. Arquitectura, interiorismo, mobiliario, asesoramiento en compra-venta de inmuebles, etc. Gracias a estos recursos propios, podemos ofrecer a nuestros clientes servicios únicos y exclusivos.
Six Seconds Properties es una agencia moderna, sensible con las nuevas tecnologías y oportunidades de mercado. Por ello también somos pioneros en ofrecerte la posibilidad de realizar transacciones inmobiliarias seguras y transparentes con criptomonedas.
Característiques
Tipus d'immoble
ÀticDisponibilitat
Sense restriccionsOrientació
OestEstat
Gairebé nouGaratge
PrivatAscensor
SíMoblat
NoEnergia
Etiqueta de qualificació energètica:GEmissions:999 kg CO₂ m² / anyEmissions
Etiqueta de qualificació energètica:GEmissions:999 kg CO₂ m² / any
- Armaris
- Terrassa
- Traster
- Z. Comunitària
- Piscina
- Pista de Tennis
- Zona Esportiva
- Zona Infantil
- Porta Blindada
- Piscina comunitària
- Safareig
- Cuina Equipada
Tipus d'interès
Quota mensual estimada
1.164 €
Servei ofert per
Fotocasa no actua com a intermediari financer. La informació proporcionada té caràcter orientatiu, basant-se en informació pública al mercat. Serà l'entitat de crèdit qui contacti amb el potencial prestatari per negociar, facilitar i pactar les condicions financeres aplicables.
Desglossament de la hipoteca
La teva quota mensual
1.164 € *
Durant 30 anys (360 quotes)
Preu de l'immoble:
325.000 €
Impostos i despeses de la compra:
34.699 €
Cost total de l'immoble:
359.699 €
Estalvi aportat:
65.000 €
Import de la hipoteca:
294.699 €
Interessos totals:
124.491 €
Cost total amb hipoteca
484.190 €
Capital + interessos + impostos i despeses
Fotocasa no actua com a intermediari financer. La informació proporcionada té caràcter orientatiu, basant-se en informació pública al mercat. Serà l'entitat de crèdit qui contacti amb el potencial prestatari per negociar, facilitar i pactar les condicions financeres aplicables.
Elige la Fibra que mejor se adapte a ti.