Connecta la teva llar
Tria la Fibra que millor s'adapti a tu.
Terrassa
📍 Calle Mare de Dèu dels Àngels.
Vive en el centro de Terrassa con la comodidad de tener todo en una sola planta y con espacio exterior privado.
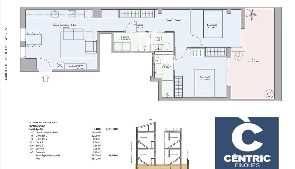
Esta planta baja de obra nueva se sitúa en la calle Mare de Déu dels Àngels, en pleno centro de la ciudad, a pocos metros de la Biblioteca Central, comercios, servicios y transporte público. Una ubicación ideal tanto para residencia habitual como inversión.
La vivienda dispone de una distribución práctica y muy funcional, con:
Salón-comedor con cocina integrada, un espacio amplio y luminoso pensado para el día a día.
Dos habitaciones dobles, una de ellas tipo suite con baño privado.
Dos baños completos.
Lavadero independiente.
Patio privado de unos 16 m², perfecto para disfrutar del aire libre, crear una zona chill-out o comer en el exterior.
En cuanto al confort y la eficiencia energética, la vivienda está equipada con sistema de aerotermia para climatización y agua caliente sanitaria, carpintería exterior con rotura de puente térmico y aislamientos térmicos y acústicos de alto nivel, garantizando un excelente confort y un bajo consumo energético.
Calidad en los acabados interiores:
Pavimento laminado de aspecto roble natural (AC4).
Cocina equipada con electrodomésticos Balay (horno, placa de inducción y campana).
Baños con mobiliario de diseño actual, platos de ducha de resina y grifos Imex.
Puertas lacadas en blanco e iluminación LED empotrada.
Una vivienda nueva, eficiente y con patio privado, pensada para quien quiere vivir en el centro de Terrassa sin renunciar al espacio ni al confort.
CÈNTRIC FINQUES, prestigio, profesionalidad e innovación a su servicio. Somos una empresa con muchos años de experiencia que durante todo este tiempo hemos consolidado nuestra presencia en el sector, gracias sobre todo al gran equipo humano de profesionales, que con su labor diaria aportan a la agencia la fuerza y eficiencia que nos distingue otras inmobiliarias, somos una compañía líder que trabaja para dar a nuestros clientes el servicio, apoyo y ayuda que necesitan.
Mobiliario, electrodomésticos, impuestos y gastos de compraventa no incluidos en el precio.
Para cualquier duda la agencia está a su disposición. AICAT 8369.
Tipus d'immoble
Disponibilitat
Antiguitat
Ascensor
Moblat
Energia
Emissions
Tipus d'interès
Quota mensual estimada
951 € *
* Provisional subjecte a estudi i oferta de CaixaBank
Servei ofert per
Fotocasa no actua com a intermediari financer. La informació proporcionada té caràcter orientatiu, basant-se en informació pública al mercat. Serà l'entitat de crèdit qui contacti amb el potencial prestatari per negociar, facilitar i pactar les condicions financeres aplicables.
Desglossament de la hipoteca
La teva quota mensual
951 € *
Durant 30 anys (360 quotes)
* Provisional subjecte a estudi i oferta de CaixaBank
Preu de l'immoble:
265.000 €
Impostos i despeses de la compra:
28.571 €
Cost total de l'immoble:
293.571 €
Estalvi aportat:
53.000 €
Import de la hipoteca:
240.571 €
Interessos totals:
101.626 €
Cost total amb hipoteca
395.197 €
Capital + interessos + impostos i despeses
Fotocasa no actua com a intermediari financer. La informació proporcionada té caràcter orientatiu, basant-se en informació pública al mercat. Serà l'entitat de crèdit qui contacti amb el potencial prestatari per negociar, facilitar i pactar les condicions financeres aplicables.
Tria la Fibra que millor s'adapti a tu.
Contracta llum i gas online, sense permanència.
Explica'ns què hi has vist per poder corregir-ho.