Contrata luz y gas online, sin permanencia
- 3 banys
- 245 m²
Pis en venda a Carrer de la Font de la Pola, 11, Matadepera
Matadepera
Obra nueva Les Pedritxes, Matadepera
Chalet independiente de 5 habitaciones
Impresionante Casa Unifamiliar de diseño con piscina. Ubicada en la exclusiva zona de Les Pedritxes, Matadepera, esta excepcional vivienda unifamiliar de nueva construcción cuenta con 5 habitaciones, gimnasio, piscina y parking. Su diseño vanguardista, combinado con el avanzado sistema Xpanel, garantiza una eficiencia sobresaliente y uso de materiales de calidad.
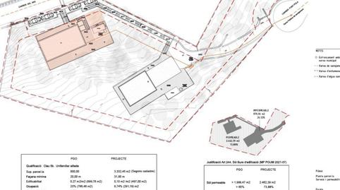
La parcela dispone de 3.332,45 m2. Distribuida en dos plantas con 245 m2 con espacios amplios y bien iluminados, asegurando un ambiente acogedor y funcional.
Distribución:
En la primera planta, Dispone de cuatro habitaciones, tres de 10,02 m² y una espectacular suite de 27,17 m² con baño privado. Además, en esta planta encontramos un gimnasio de 22,55 m², un baño completo de 4,95 m², un lavadero de 2,85 m², una zona de paso de 8,58 m² y un recibidor de 6,13 m².
La planta baja diseñada para maximizar el confort y la funcionalidad, esta planta cuenta con una amplia sala de estar, comedor y cocina de 80,93 m², con acceso directo al jardín y la piscina, proporcionando un espacio ideal para la vida familiar y el entretenimiento. Además, incluye una habitación de 9,15 m², un baño de 3,77 m² y un distribuidor de 2,09 m².
La vivienda también incluye un garaje privado y una fantástica zona exterior con jardín y piscina, convirtiéndola en el hogar perfecto para quienes buscan exclusividad, diseño y calidad de vida.
Si buscas una casa moderna y eficiente en un entorno natural privilegiado, ¡esta es tu oportunidad! Propuesta de decoración no incluida, ni mobiliario, se puede valorar. No dudes en contactarnos para más información o para concertar una visita.
Característiques
Tipus d'immoble
PisDisponibilitat
Sense restriccionsOrientació
SudEstat
Molt béGaratge
PrivatAscensor
NoMoblat
NoEnergia
Etiqueta de qualificació energètica:AEmissions:999 kg CO₂ m² / anyEmissions
Etiqueta de qualificació energètica:AEmissions:999 kg CO₂ m² / any
- Aire condicionat
- Calefacció
- Jardí Privat
- Parquet
- Terrassa
- Piscina
- Suite - amb bany
- Electrodomèstics
- Gimnàs
- Safareig
Tipus d'interès
Quota mensual estimada
2.997 €
Servei ofert per
Fotocasa no actua com a intermediari financer. La informació proporcionada té caràcter orientatiu, basant-se en informació pública al mercat. Serà l'entitat de crèdit qui contacti amb el potencial prestatari per negociar, facilitar i pactar les condicions financeres aplicables.
Desglossament de la hipoteca
La teva quota mensual
2.997 € *
Durant 30 anys (360 quotes)
Preu de l'immoble:
840.000 €
Impostos i despeses de la compra:
86.497 €
Cost total de l'immoble:
926.497 €
Estalvi aportat:
168.000 €
Import de la hipoteca:
758.497 €
Interessos totals:
320.416 €
Cost total amb hipoteca
1.246.913 €
Capital + interessos + impostos i despeses
Fotocasa no actua com a intermediari financer. La informació proporcionada té caràcter orientatiu, basant-se en informació pública al mercat. Serà l'entitat de crèdit qui contacti amb el potencial prestatari per negociar, facilitar i pactar les condicions financeres aplicables.
Elige la Fibra que mejor se adapte a ti.
Tu vivienda protegida cuando estas fuera
Arquitectos que inspeccionan tu futura casa




