Contrata luz y gas online, sin permanencia
- 3 habs.
- 1 bany
- 90 m²
- Baixos
Pis en venda a De Sant Joan, Manlleu
Manlleu
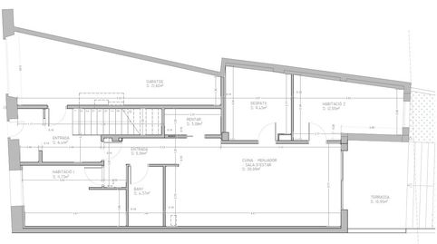
Pis en construcció, totalment reformat i a estrenar, situat a la població de Manlleu, en una zona tranquil·la i ben comunicada. Es tracta d’un habitatge modern, dissenyat amb criteris actuals que prioritzen el confort, la funcionalitat i l’aprofitament de la llum natural.L’immoble disposa d’un ampli espai obert de menjador-cuina de 30,09 m², que es converteix en el cor de la llar. Aquest espai destaca per la seva lluminositat i connexió directa amb l’exterior, amb sortida a una agradable terrassa de 11 m², ideal per a esmorzars a l’aire lliure o moments de relax, i a un magnífic jardí posterior privat de 100 m², perfecte per gaudir en família, crear una zona chill-out, instal·lar una piscina o habilitar un espai de jocs.La zona de nit està formada per dues habitacions dobles àmplies, amb espai suficient per a armaris grans i zones de descans còmodes, i una tercera habitació tipus estudi, ideal com a despatx, sala de treball, habitació juvenil o espai polivalent segons les necessitats. L’habitatge es completa amb un bany complet amb acabats moderns i una pràctica cambra de rentar independent que aporta comoditat en el dia a dia.Pel que fa als acabats, en tractar-se d’una reforma integral, el pis es lliura amb materials actuals i de qualitat, pensats per oferir eficiència energètica, confort tèrmic i un estil contemporani. És una oportunitat perfecta per estrenar un habitatge nou sense les complicacions d’una obra des de zero.A més, la propietat inclou una plaça d’aparcament tipus box independent de 21,82 m², amb espai suficient per a vehicle i emmagatzematge addicional, un valor afegit molt destacat.En resum, un habitatge ideal per a famílies o per a qui busqui espais amplis, exteriors privats i comoditats modernes, en un entorn tranquil però amb tots els serveis a l’abast.
Característiques
Tipus d'immoble
PisDisponibilitat
Sense restriccionsEstat
Gairebé nouAntiguitat
Menys d'1 anyGaratge
PrivatPlanta
Baixos / Planta baixaAscensor
NoMoblat
NoEnergia
Etiqueta de qualificació energètica:GEmissions:999 kg CO₂ m² / anyEmissions
Etiqueta de qualificació energètica:GEmissions:999 kg CO₂ m² / any
- Calefacció
Tipus d'interès
Quota mensual estimada
890 €
Servei ofert per
Fotocasa no actua com a intermediari financer. La informació proporcionada té caràcter orientatiu, basant-se en informació pública al mercat. Serà l'entitat de crèdit qui contacti amb el potencial prestatari per negociar, facilitar i pactar les condicions financeres aplicables.
Desglossament de la hipoteca
La teva quota mensual
890 € *
Durant 30 anys (360 quotes)
Preu de l'immoble:
248.000 €
Impostos i despeses de la compra:
26.871 €
Cost total de l'immoble:
274.871 €
Estalvi aportat:
49.600 €
Import de la hipoteca:
225.271 €
Interessos totals:
95.162 €
Cost total amb hipoteca
370.033 €
Capital + interessos + impostos i despeses
Fotocasa no actua com a intermediari financer. La informació proporcionada té caràcter orientatiu, basant-se en informació pública al mercat. Serà l'entitat de crèdit qui contacti amb el potencial prestatari per negociar, facilitar i pactar les condicions financeres aplicables.
Elige la Fibra que mejor se adapte a ti.