Calcula la teva hipoteca
Compara ofertes dels diferents bancs.
Málaga Capital
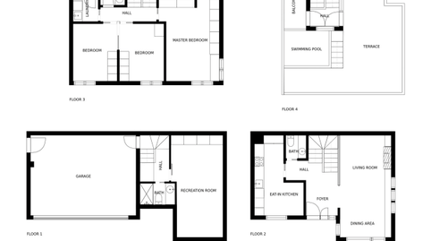
Esta casa en Málaga Este no es para quien busca un inmueble estándar; es para quien quiere un hogar donde la creatividad se mezcla con la magia diaria. Con 257 m² distribuidos en tres niveles, cada espacio está diseñado para llenar de luz y confort tu vida junto al mar. En la planta principal, una cocina abierta se integra con un salón cálido, potenciado por una chimenea de etanol que invita a disfrutar noches acogedoras con risas y momentos inolvidables. En el sótano, un refugio íntimo ofrece un dormitorio completo con baño y el lujo de tener acceso directo al garaje privado.
Subiendo al primer piso, la suite principal es tu santuario personal, mientras que dos dormitorios flexibles, separados por paredes correderas, se adaptan a tus necesidades: habitaciones para niños hoy, gimnasio o estudio creativo mañana. Además, una zona de lavandería moderna y funcional elimina el tedio del día a día.
Pero el verdadero corazón de esta vivienda es el solárium en la azotea, un oasis privado donde el sol Mediterráneo brilla sobre una piscina pequeña y brillante, una zona de barbacoa, un área salón con televisión exterior, y vistas infinitas al mar. Imagina atardeceres que te envuelven mientras disfrutas de un cóctel o una sesión de yoga.
Más que una casa, es tu lienzo para vivir con intensidad, libertad y belleza. Esta historia está destinada a contarse una y otra vez, en cada plataforma, hasta encontrar al alma perfecta que la haga su hogar.
Tipus d'immoble
Consum energia
Emissions
Compara ofertes dels diferents bancs.
Tria la Fibra que millor s'adapti a tu.
Estalvia un 30% en un servei de 5 estrelles.
Explica'ns què hi has vist per poder corregir-ho.