Contrata luz y gas online, sin permanencia
- 3 habs.
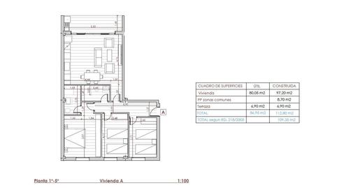
- 2 banys
- 97 m²
- 2ª Planta
Pis en venda a El Valle - Universidad
Jaén Capital
🚨 ATENCIÓN | ¡¡¡SIN COMISIÓN PARA EL COMPRADOR!!! 🚨
EDIFICIO NORA – OBRA NUEVA EN CARDENAL MARCELO SPÍNOLA (JAÉN)
Te presentamos Edificio Nora, una exclusiva promoción de obra nueva situada en una de las zonas con mayor proyección de Jaén, en C/ Cardenal Marcelo Spínola, a escasos minutos de la Universidad de Jaén y del Centro Comercial Jaén Plaza. Una ubicación estratégica, ideal tanto para vivir como para invertir.
El residencial estará compuesto por 5 plantas de viviendas, ofreciendo un entorno moderno, funcional y pensado para el confort diario.
Cada planta dispone de 4 viviendas, todas ellas con plaza de garaje y trastero incluidos en el precio, un valor añadido imprescindible hoy en día.
🏡 Tipologías disponibles:
• Viviendas de 2 dormitorios, garaje y trastero: 234.000€ IVA incluido
• Viviendas de 3 dormitorios, garaje y trastero: 274.000€ IVA incluido
Todas las viviendas cuentan con terraza, aportando luz natural y espacio exterior para disfrutar durante todo el año. Además, los bajos disponen de patio exterior privado, ideal para familias, zona chill-out o espacio adicional de esparcimiento.
Edificio Nora será un residencial privado con piscina, perfecto para disfrutar en familia y aportar un plus de calidad de vida. Viviendas diseñadas con una distribución práctica, luminosa y adaptada a las necesidades actuales.
📅 Entrega prevista: último trimestre de 2026.
Una oportunidad única de adquirir vivienda de obra nueva en una zona consolidada, con todos los servicios a tu alcance y excelente conexión con el centro de la ciudad y fácil salida de la misma
Memoria de calidades:
🏗️ ESTRUCTURA Y FACHADA
• Forjado reticular de hormigón armado.
• Fachada de ladrillo visto (5 cm) con revestimiento monocapa.
🪵 PAVIMENTOS
• Cuartos húmedos con baldosas de gres de 1ª calidad.
• Resto de la vivienda con tarima flotante.
🎨 REVESTIMIENTOS
• Baños y cocina alicatados en tonos suaves de 1ª calidad.
• Paredes con yeso proyectado.
• Techos de pladur o enlucido de yeso proyectado.
🚪 CARPINTERÍA EXTERIOR E INTERIOR
• Ventanas de PVC bicolor con doble acristalamiento 4+12+4 bajo emisivo.
• Persianas de aluminio en dormitorios.
• Puertas interiores lisas en color blanco con manivela de latón.
• Puerta de entrada de seguridad con cerradura de 3 puntos tipo TESA.
• Puertas con vidrieras en cocina y salón.
⚡ INSTALACIONES
• Electricidad con mecanismos Simón 75.
• Fontanería con tubo reticular y desagües en PVC para agua caliente.
• Telecomunicaciones según normativa vigente.
• Sistema de climatización mediante aerotermia con suelo radiante y refrigerante.
• Agua caliente sanitaria (ACS) mediante acumulador aerotérmico.
🚿 APARATOS SANITARIOS
• Sanitarios Roca.
• Platos de ducha de resina.
• Grifería monomando.
• Pintura plástica lisa.
🏢 ZONAS COMUNES
• Ascensor para 8 plazas.
• Escaleras revestidas de granito.
• Rampa de garaje en hormigón impreso gris con puerta motorizada.
• Piscina comunitaria.
• Videoportero en cada vivienda. [IW]
Característiques
Tipus d'immoble
PisDisponibilitat
Sense restriccionsPlanta
2a PlantaAscensor
SíMoblat
NoEnergia
Etiqueta de qualificació energètica:GEmissions:999 kg CO₂ m² / anyEmissions
Etiqueta de qualificació energètica:GEmissions:999 kg CO₂ m² / any
- Calefacció
- Terrassa
- Traster
- Piscina comunitària
Tipus d'interès
Quota mensual estimada
953 € *
* Provisional subjecte a estudi i oferta de CaixaBank
Servei ofert per
Fotocasa no actua com a intermediari financer. La informació proporcionada té caràcter orientatiu, basant-se en informació pública al mercat. Serà l'entitat de crèdit qui contacti amb el potencial prestatari per negociar, facilitar i pactar les condicions financeres aplicables.
Desglossament de la hipoteca
La teva quota mensual
953 € *
Durant 30 anys (360 quotes)
* Provisional subjecte a estudi i oferta de CaixaBank
Preu de l'immoble:
278.000 €
Impostos i despeses de la compra:
18.751 €
Cost total de l'immoble:
296.751 €
Estalvi aportat:
55.600 €
Import de la hipoteca:
241.151 €
Interessos totals:
101.871 €
Cost total amb hipoteca
398.622 €
Capital + interessos + impostos i despeses
Fotocasa no actua com a intermediari financer. La informació proporcionada té caràcter orientatiu, basant-se en informació pública al mercat. Serà l'entitat de crèdit qui contacti amb el potencial prestatari per negociar, facilitar i pactar les condicions financeres aplicables.
Elige la Fibra que mejor se adapte a ti.