Connecta la teva llar
Tria la Fibra que millor s'adapti a tu.
Badalona
Casa adosada parcialmente reformada en Pompeu Fabra – Badalona a tan solo 300 mts del metro, rodeada de servicios y buena combinación de transportes en general.
Preciosa casa adosada de tres plantas, parcialmente reformada, situada en la zona de Pompeu Fabra, Badalona. Combina carácter tradicional con mejoras modernas, ofreciendo estancias amplias, luminosas y varias zonas exteriores.
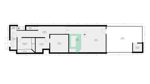
🔹 Planta baja
Recibidor que conduce al salón-comedor de dos alturas, con chimenea, Split de aire acondicionado frío/calor y techos altos de 2,92 m.
Cocina independiente de 11,58 m², con gas natural, horno y microondas empotrados, espacio para doble nevera, buena ventilación natural y apertura al salón, integrando ambos espacios.
Sala contigua a la cocina de 6,15 m², ideal como office, comedor auxiliar o despensa.
Habitación en planta baja de 5,61 m² con armario empotrado en L.
Aseo bajo escalera de dos piezas, reformado parcialmente en 2020.
Patio principal de 34 m², orientado a oeste (sol de tardes), con barbacoa de obra y espacio de trastero.
Escalera lateral y distribuidores con volta catalana, conectando con la primera planta.
🔹 Primera planta
Habitación principal con armario empotrado, aire acondicionado frío/calor y ventana doble de aluminio orientada a Paseo Sant Joan.
Habitación secundaria con Split frío/calor y vistas al patio interior.
Baño completo de cuatro piezas, con amplia ducha y ventana al patio interior, que también alberga el desagüe para lavadora/secadora.
Habitación adicional de gran tamaño con salida a balcón y sol de tardes.
Pasillos y distribuidores conectando las estancias.
🔹 Segunda planta (ático)
Espacio diáfano parcialmente reformado, con instalación prevista de cocina y aseo de dos piezas con entrada de luz natural.
Terraza superior con vistas despejadas al Paseo Sant Joan, orientación oeste y sol de tardes.
🔹 Detalles y acabados
Parcialmente reformada en 2020 (baños, cocina, algunas instalaciones).
Cerramientos combinados: madera rústica y aluminio con doble acristalamiento.
Volta catalana en zonas de paso.
Climatización por Splits frío/calor y calefacción eléctrica.
Bajantes y sistema eléctrico renovados.
Suelos de terrazo y parquet según estancia.
Gran luminosidad y ventilación en todas las plantas.
📏 Información adicional: superficies por estancias (aproximadas)
Estancia / Zona Superficie útil
Planta baja
Salón-comedor 30,9 m²
Cocina 11,58 m²
Sala contigua 6,15 m²
Habitación 5,61 m²
Aseo 1,4 m²
Recibidor 2,76 m²
Distribuidor / escalera 5,96 + 4,89 m²
Patio principal 34 m²
Primera planta
Habitación principal 13,32 m²
Armario principal 1,84 m²
Habitación secundaria 8,29 m²
Habitación adicional 26,36 m²
Baño completo 7,54 m²
Distribuidores / pasillos 2,21 + 4,3 + 2,48 m²
Patio interior 4,33 m²
Balcón 3,73 m²
Segunda planta (ático) 21,56 m²
Aseo 2,03 m²
Terraza superior 53,26 m²
Para tu tranquilidad, En HIHOMIE, la inmobiliaria de la calle del mar, te ofrecemos asesoramiento hipotecario de confianza, con condiciones adaptadas a cada cliente.
Además, realizamos un estudio de valoración gratuito, para que tu visita sea totalmente objetiva y segura.
Tipus d'immoble
Disponibilitat
Orientació
Estat
Antiguitat
Ascensor
Moblat
Energia
Emissions
Tipus d'interès
Quota mensual estimada
2.036 € *
* Provisional subjecte a estudi i oferta de CaixaBank
Ja estàs buscant finançament?
T'ajudem a trobar l'opció que millor s'adapta a tu.
Servei ofert per
Fotocasa no actua com a intermediari financer. La informació proporcionada té caràcter orientatiu, basant-se en informació pública al mercat. Serà l'entitat de crèdit qui contacti amb el potencial prestatari per negociar, facilitar i pactar les condicions financeres aplicables.
La teva quota mensual
2.036 € *
Durant 30 anys (360 quotes)
* Provisional subjecte a estudi i oferta de CaixaBank
Preu de l'immoble:
570.000 €
Impostos i despeses:
59.347 €
Cost total de l'immoble:
629.347 €
Estalvi aportat:
114.000 €
Import de la hipoteca:
515.347 €
Interessos totals:
217.701 €
Cost total amb hipoteca
847.048 €
Capital + interessos + impostos i despeses
Ja estàs buscant finançament?
T'ajudem a trobar l'opció que millor s'adapta a tu.
Servei ofert per
Fotocasa no actua com a intermediari financer. La informació proporcionada té caràcter orientatiu, basant-se en informació pública al mercat. Serà l'entitat de crèdit qui contacti amb el potencial prestatari per negociar, facilitar i pactar les condicions financeres aplicables.
Tria la Fibra que millor s'adapti a tu.
Contracta llum i gas online, sense permanència.
Explica'ns què hi has vist per poder corregir-ho.