Calcula la teva hipoteca
Compara ofertes dels diferents bancs.
Artà
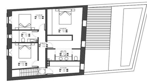
Casa de pueblo a reformar con proyecto y licencia de obra, lo que permite al comprador iniciar de inmediato la reforma sin trámites adicionales. Según el proyecto aprobado, la vivienda se distribuye en dos plantas. En la planta baja de 63,80m2 aprox. se prevé un luminoso salón recibidor con cocina integrada y un vestíbulo. La primera planta de 85,30m2 aprox. contará con tres dormitorios dobles, 3 baños, coladuria. Garaje, trastero y piscina. Una oportunidad única para disfrutar de la vida en uno de los pueblos más encantadores de Mallorca, combinando el encanto de la arquitectura mallorquina con el confort de un proyecto moderno ya planificado y listo para ejecutar.
Tipus d'immoble
Pàrquing
Moblat
Consum energia
Emissions
Compara ofertes dels diferents bancs.
Tria la Fibra que millor s'adapti a tu.
Estalvia un 30% en un servei de 5 estrelles.
Explica'ns què hi has vist per poder corregir-ho.